Онлайн книга «Современная архитектура Японии. Традиции восприятия пространства»
|
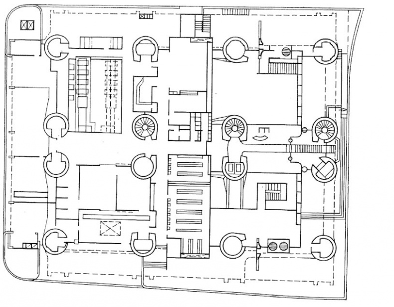
Здание большой и малой спортивных арен воспринимаются как согласованная и гармоничная единая композиция. Постройки образно дополняют друг друга. Оси обоих зданий расположены в направлении восток – запад. Яркий образ, складывающийся из динамических форм олимпийских сооружений, усиливает их функциональное назначение. Здания закручиваются в одном направлении подобно вихрю, создавая самостоятельный сгусток энергии. Вся композиция воспринимается как метафора спортивной борьбы, требующей полной отдачи и самопожертвования. В интерьерах также главенствующую роль играют энергичные очертания криволинейных потолков. Вантовые конструкции, выбранные Тангэ для стадионов комплекса Ёёги, еще не раз будут использоваться в дальнейшем при возведении олимпийских сооружений. Они позволяют перекрывать гигантские пространства и несут в себе неисчерпаемый геометрический потенциал. Архитектора не испугал отведенный ему участок неправильной формы со сложным рельефом, на котором он сумел создать яркую и гармоничную композицию. Проект спортивного комплекса отражает основы японской эстетики, предусматривая интеграцию здания в ландшафт. Вантовые конструкции лучше любых других способны создать пластичные формы, согласующиеся с миром органической природы. Биоморфные формы идеально вписываются в окружение и находятся в гармонии с парковой и лесной зонами, расположенными рядом. Наземный объем сделан минимальным, насколько это возможно, ведь основная часть необходимого пространства расположена под землей. ![]() К. Тангэ Малая спортивная арена ![]() Конструкции малой спортивной арены При создании плана спортивного комплекса Ёёги были предусмотрены сады как обязательная составляющая японского архитектурного ансамбля. На стилобате рядом со спортивными аренами был разбит пруд, а также устроены клумбы и газоны разных размеров и конфигураций, интересно обыграны рельефные трудности с использованием деревьев, кустарников и камней, созданы цветные композиции как перекличка с традиционным японским садом «Четыре времени года». Интересно обращение великого архитектора к национальным традициям своей культуры. Например, элементы завершения большой спортивной арены комплекса Ёёги перекликаются с архитектурой главной святыни Японии – синтоистского святилища Исэ. «Весь дальнейший путь японской архитектуры берет свое начало в Исэ», – писал Тангэ [12]. Его обращение к традиции всегда тактично и неназойливо, но никогда «в лоб». Тангэ не только понял, но и прочувствовал все основополагающие вехи, составляющие японскую архитектурную традицию. Поэтому в организации пространства сооружений великого архитектора в едва уловимых полутонах и намеках можно угадать те константы, которые составляют сущность японской культуры. Центр прессы и радиокоммуникаций префектуры Яманаси (Yamanashi Broadcasting and Press Center, 1967 г.) должен был вместить в себя фирмы, работающие в области информации: типографию, газеты, радио- и телестудии. Архитектор сгруппировал помещения по функциям. Так были созданы группы помещений администрации, студий, рабочие цеха, которые фирмы распределили между собой. Типография с ее тяжелым оборудованием разместилась на первом этаже. Студиям были отведены верхние этажи без окон, т. к. им наиболее важна звукоизоляция и не требуется дневной свет. Административные помещения всех фирм заняли средние этажи, которые хорошо освещены через застекленные стены и опоясаны сплошными балконами. Во внешнем облике сооружения четко прослеживается вертикальное и горизонтальное членение. Коммуникационные помещения (лестничные клетки, грузовые и пассажирские лифты, санузлы и пр.) размещены в 16 вертикальных цилиндрических башнях-колоннах. Горизонтальные помещения имеют свободную планировку, которая диктуется различными функциями. Каждая функция выражается требующимся ей открытым или закрытым объемом. А также в здании зарезервировано свободное пространство для дальнейшего расширения его функционала. Таким образом, сооружение является примером трехмерной пространственной системы в одной постройке. Это позволяет зданию в целом символически передавать образ современного города, предназначенного для коммуникации. ![]() К.Тангэ. Центр прессы и радиокоммуникаций префектуры Яманаси (1967 г.) ![]() К.Тангэ. Центр прессы и радиокоммуникаций префектуры Яманаси. План Знаменитые произведения Тангэ помогают понять отношение мастера к «триаде» основополагающих пространственных категорий Японии. Работая со сформировавшимися в культуре категориями, архитектор ставит их «на службу» раскрытия функционального потенциала сооружения. Ведущую роль в «триаде» Тангэ отводит «пустоте», несущей основную художественную, смысловую и функциональную нагрузку. «Промежуток» и «тень» лишь подчеркивают доминанту, усиливая ее воздействие. В целом «триада» в работах Тангэ, раскрывая функциональное назначение здания, наделяет его таким ярким образным воздействием, что превращает сооружение в безусловный знак-символ. Так Тангэ старался сформировать новый тип мышления, восприимчивый к эстетическим ценностям, способный на раскрытие смыслового ряда, заложенного в произведении искусства, прежде всего в архитектуре. И одновременно (одно без другого невозможно) архитектор смог наделить архитектурные сооружения и город в целом характеристиками «эстетичный», «функциональный», используя для этого «триаду» как составную часть глубоких механизмов миропонимания японцев. Кисё Курокава и «серое» пространство
Раскрывая представления о красоте в культуре Японии, К. Курокава создает собственную философию архитектуры, предъявляя свое произведение как емкий художественный образ. Он умышленно апеллирует к серому цвету и «серым зонам» в здании, делая акцент именно на них. Под «серой зоной» Курокава понимает промежуточное пространство, которое нельзя отнести ни ко внешнему, ни ко внутреннему, оно является срединным элементом, вбирающим в себя качества двух первых. Своим творчеством архитектор также демонстрирует возможности серого цвета, преимущественно отказываясь от ярких красок в пользу более сдержанных серых оттенков. Серый предъявляется в работах мастера как цвет, создающий качественные характеристики архитектурным произведениям, наполняющий их содержательными образами, встраивающий произведения в ряд традиционно осмысляемых. Выбранный цвет подчеркивает естественную фактуру используемых материалов – бетона, металлических конструкций. Прежде всего именно цветовое решение раскрывает понимание архитектором традиций своей культуры и способствует более полному восприятию его произведений. Этот цвет был настолько любим великим чайным мастером 16 в. Сэн-но Рикю, что существует даже термин «мышино-серый во вкусе Рикю» (Рикю-нэдзуми). |
![Иллюстрация к книге — Современная архитектура Японии. Традиции восприятия пространства [i_013.jpg] Иллюстрация к книге — Современная архитектура Японии. Традиции восприятия пространства [i_013.jpg]](img/book_covers/082/82544/i_013.jpg)
![Иллюстрация к книге — Современная архитектура Японии. Традиции восприятия пространства [i_014.jpg] Иллюстрация к книге — Современная архитектура Японии. Традиции восприятия пространства [i_014.jpg]](img/book_covers/082/82544/i_014.jpg)
![Иллюстрация к книге — Современная архитектура Японии. Традиции восприятия пространства [i_015.jpg] Иллюстрация к книге — Современная архитектура Японии. Традиции восприятия пространства [i_015.jpg]](img/book_covers/082/82544/i_015.jpg)
![Иллюстрация к книге — Современная архитектура Японии. Традиции восприятия пространства [i_016.jpg] Иллюстрация к книге — Современная архитектура Японии. Традиции восприятия пространства [i_016.jpg]](img/book_covers/082/82544/i_016.jpg)