Онлайн книга «Современная архитектура Японии. Традиции восприятия пространства»
|
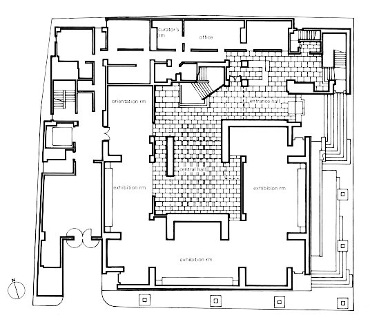
Сочетая национальные традиции с использованием структурных и эстетических возможностей монолитного железобетона, Маэкава добивался просто скульптурной выразительности своих произведений. Кэндзо Тангэ: архитектура как функция и символ
Создавая свои произведения, К. Тангэ рассматривает традиционные пространственные категории, сформировавшиеся в культуре, как «материал», который можно наполнить новым запасом символов. Архитектор относится к багажу традиций как к фундаменту, который нужно надстроить уже на новом, более современном уровне. Ведь именно так, при деликатном отношении, он сумеет в полной мере сохранить свои качества. Символическое наполнение пронизывает все работы мастера. Однако символы, раскрывающие содержание какого-либо произведения, напрямую зависят от его функционального назначения. «Мы могли бы сказать, что пространство обладает своим собственным метафизическим значением. Пространство – это мир значения. ‹…› Нам нужен символический подход к архитектуре и городскому пространству» [11]. Своими произведениями Тангэ подтверждал собственную концепцию, по которой пространство архитектурного сооружения требует символического выражения своей функции. ![]() К. Маэкава. Музей в Окаяме. План Проектирование культовых сооружений в новых формах как распространение смелых художественных идей началось в Японии еще в 1930-е гг. Однако после Второй мировой войны на долгое время эксперименты в этой области были прерваны. Архитекторов современного направления старались не приглашать для строительства храмов, лишь с конца 1950-х – начала 1960-х гг. у них появилась возможность работать в области культовой архитектуры, развивая идеи пластического символизма. Начало 1960-х для Тангэ – это время исследований и экспериментов в области создания архитектурной формы за счет использования новых материалов и технологий. Вершиной его экспериментов становятся два шедевра того времени: комплекс Олимпийских стадионов и собор Святой Марии в Токио. Прежде чем взяться за создание католического храма, Тангэ много путешествовал по Западной Европе и изучал традиции культовой архитектуры разных стран. Проект нового храма он создавал при участии Вильгельма Шломбса, главного архитектора кёльнской епархии, и швейцарского архитектора Макса Лехнера, а также с привлечением своего неизменного помощника и коллеги по многим проектам – инженера-конструктора Ёсикацу Цубои. Собор возводился с 1962 по 1964 г. В этом проекте автору пришлось соединить западный (христианский) и восточный (синтоистский) принципы. Кафедральный собор Св. Марии (St. Mary's Cathedral) в Токио был спроектирован с учетом символического раскрытия его предназначения. Первое, что обращает на себя внимание при встрече с собором – его уединение. Контраст проявится более резко, если сравнить его с католическими соборами в Европе. Перед собором Св. Марии нет открытого общественного пространства, с которого можно было бы насладиться его величием, как это принято в европейском восприятии. Более того, церковь находится рядом с шумной магистралью, прячется среди других зданий, плотно окружающих ее со всех сторон. Это стремление спрятать культовое сооружение, сокрыть его от любопытных глаз – древняя японская традиция. Все синтоистские святилища скрыты в лесу. Даже в крупном мегаполисе, оказывается, можно изыскать возможности «спрятать» святилище в глубине двора или парковой зоны. Самые важные из них, например знаменитое святилище Исэ, человеку не удастся полностью увидеть никогда. А единственный способ окинуть собор Св. Марии взглядом целиком – это подняться на расположенный по соседству пешеходный мост. Только так можно получить представление об истинных размерах и пропорциях постройки. Находясь на земле, этого сделать не удастся. Форма собора очень лаконична (См. вкл.: илл.2). План храма ромбовидный, что представляет собой один из символов древнехристианского искусства – рыбу. От ромбовидного плана совершается сложный переход к крестообразному завершению. Стороны церкви соединяются с вершинами креста с помощью восьми кривых, называющихся гиперболическими параболоидами. Размеры креста – 55,5 м в длину и 40 м в ширину. Таким образом, вид на собор сверху – это вид на удлиненный латинский крест, подчеркивающий его принадлежность к католичеству. Крестообразное завершение храма – это световой проем. Дневной свет, проникающий в церковь в форме креста, символически наполняет ее пустой интерьер божественным благословением, за которым приходят в храм верующие. Изогнутые стены собора имеют форму паруса, края которого приподняты, и торцы также представляют собой вертикальные световые проемы шириной 2 м. Высота торцевых частей от 30 до 40 м. Таким образом, любое положение солнца дает эффект креста внутри собора, независимо от того, в какое крыло попадают его лучи. Ключевым моментом в создании художественного облика интерьера, затмевающим по силе воздействия все остальное, стало оформление алтаря. Высокий строгий крест алтаря по ширине совпадает с остекленным проемом в торцевой части собора. Алтарное пространство – это самая высокая часть собора – 40 м. Расположен алтарь, согласно канону, на востоке, поэтому во время утренней службы восходящее солнце поднимается в алтарной части над крестом, освещая всех прихожан благодатным светом. Противопоставление внешнего и внутреннего пространства собора (как символизирующее светское и церковное) усиливается выбранным материалом. Блестящая нержавеющая сталь, которой покрыта наружная часть стен, контрастирует с необработанным бетоном, используемым в интерьере. Можно сказать, что свет отражается от гофрированной поверхности металлической облицовки наружных стен, подчеркнуто разводя смыслы. Ведь только попадая в интерьер, свет становится божественным. ![]() К. Тангэ. Кафедральный собор Св. Марии в Токио (1962–64 гг.) ![]() К. Тангэ. Кафедральный собор Св. Марии в Токио. План В отличие от яркого, ослепительно сверкающего в солнечный день наружного покрытия собора, его интерьер очаровывает своими мрачными тонами и незавершенностью текстуры бетона. Это сделано в полном соответствии с японской концепцией ваби-саби, свидетельствующей о красоте незавершенных вещей и характеризующей способность японцев воспринимать прекрасное в своем первозданном естестве, без излишеств – всматриваться в незаметное, вслушиваться в недосказанное. Необработанные бетонные стены представляют собой строгое зрелище, которое становится величественным и прекрасным при контакте со светом, проникающим внутрь через крестообразное завершение и удлиненные окна в торцах постройки. Объединяет архитектурно-художественный облик собора и оформление его интерьера простота, даже аскетичность используемых материалов и отсутствие декора. Всем своим творчеством Тангэ подчеркивал важность одного из своих творческих кредо – сохранять честность по отношению к материалу. Если материал выбран правильно, скрывать, а тем более украшать его не нужно, он сам должен проявить свою действенную функциональность (хатараки). |
![Иллюстрация к книге — Современная архитектура Японии. Традиции восприятия пространства [i_007.jpg] Иллюстрация к книге — Современная архитектура Японии. Традиции восприятия пространства [i_007.jpg]](img/book_covers/082/82544/i_007.jpg)
![Иллюстрация к книге — Современная архитектура Японии. Традиции восприятия пространства [i_008.jpg] Иллюстрация к книге — Современная архитектура Японии. Традиции восприятия пространства [i_008.jpg]](img/book_covers/082/82544/i_008.jpg)
![Иллюстрация к книге — Современная архитектура Японии. Традиции восприятия пространства [i_009.jpg] Иллюстрация к книге — Современная архитектура Японии. Традиции восприятия пространства [i_009.jpg]](img/book_covers/082/82544/i_009.jpg)