Онлайн книга «Градостроительная политика в СССР (1917-1929). От города-сада к ведомственному рабочему поселку»
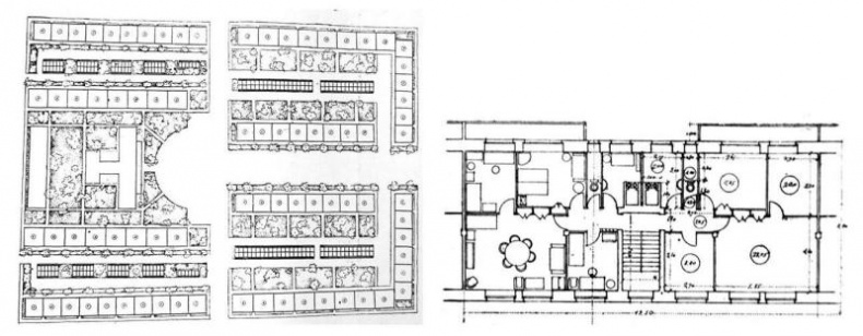
![]() Рис. 158. Конкурс на составление проекта застройки участка в г. Самаре многоквартирными жилыми домами для рабочих семей. V премия. Генплан, планировки квартир. Арх. З. М. Розенфельд, Ф. Я. Бялостоцкая. 1927 ![]() Рис. 159. Рабочий поселок при вагоностроительном заводе в Нижнем Тагиле. Генплан. Не позже 1927 Однако если в 1926–1927 гг. жилищное строительство «городских рабочих кварталов» столицы и крупнейших губернских городов официально ориентировалось на 3–4-этажные каменные здания, то рекомендации по проектированию жилья в «рабочих пригородах» и в обособленных «рабочих поселках при внегородском промышленном предприятии» не имели пока своей однозначной нормативной трактовки ни по строительным и конструктивным материалам, ни по архитектурным и градостроительным решениям, ни по этажности жилых зданий и плотности застройки. Из-за отсутствия в этот период однозначных нормативных предписаний в отношении типа жилого дома и характера планировочной структуры в рабочих поселках при промышленных предприятиях их проектирование, осуществлявшееся государственными ведомствами в конце 1925 – начале 1927 г., продолжало основываться на постулатах города-сада – как в композиционном отношении, так и в отношении типологии жилища. ![]() Рис. 160. Рабочий поселок при Нижнетагильском вагоностроительном заводе. Проект. Перспектива. Не позже 1927 Например, разработанный Гипромезом проект поселка при вагоностроительном заводе в Нижнем Тагиле был «запроектирован со всеми необходимыми санитарно-техническими и культурно-бытовыми учреждениями; ему был придан характер города-сада, способного удовлетворить до известной степени и эстетическое чувство населения» [513] (рис. 159, 160). Подобным был и проект рабочего поселка при Магнитогорском металлургическом заводе (рис. 161, 162). Уже упоминавшийся нами соцпоселок крупнейшего в стране бумажного комбината под Нижним Новгородом, поставлявшего свою продукцию в Москву для издательства газеты «Правда», и названный поэтому Правдинск, спроектированный в 1927 г. (арх. П. Струков), имел следующую типологию жилища: а) одноэтажные дома с одно– и двухкомнатными квартирами и кухнями-столовыми; б) одноэтажные здания с трехкомнатными квартирами; в) двухэтажные строения на четыре и шесть квартир, состоящих из двух и трех комнат; г) двухэтажные дома на восемь квартир из двух и трех комнат. Все квартиры имели застекленные веранды, подсобные помещения, большие кухни и санузлы. Жилые дома были бревенчатыми, некоторые – обшиты досками. Перед каждым домом, как в говардовских прототипах, был небольшой приусадебный участок [514]. ![]() Рис. 161. Рабочий поселок при Магнитогорском металлургическом заводе. Генплан. Проект. 1929 ![]() Рис. 162. Магнитогорский металлургический завод и рабочий поселок при нем. Проект. Перспектива. 1929 Нормы проектирования рабочих поселков этого периода [515] предполагали наличие: а) 3–4-этажных многоквартирных домов, б) блокированной застройки, в) индивидуальных 1–2-этажных домостроений особнякового типа (заметим, что концептуально-идеологический отказ от проектного выделения в границах городской территории зон индивидуального жилища последовал только в конце 1920-х гг., после принятия постановления ЭКОСО РСФСР от 8 апреля 1929 г. [516]). В научной литературе, издававшейся в этот период ГУКХ НКВД – главным «субъектом» осуществления государственной жилищной и градостроительной политики, рекомендовался широкий спектр градостроительных решений для советских рабочих поселков – от рассредоточенной особняковой застройки с живописной планировкой, присущей городу-саду, до многоэтажной секционной застройки регулярной поквартальной структуры. Следует подчеркнуть, что государственная градостроительная политика, осуществлявшаяся в первые годы советской власти по отношению к рабочим поселкам, возводимым ведомствами возле восстанавливаемых и реконструируемых промышленных предприятий, отличалась от градостроительной политики, реализуемой в тот же период в отношении существовавших городов. Советский рабочий поселок изначально теоретически рассматривался как автономное производственно-селитебное образование (жилищно-производственный комплекс), основные процессы управления, финансирования и функционирования которого всецело должны были предопределяться его производственной составляющей. В этот период высшие органы государственного управления прилагали усилия к созданию новых механизмов осуществления градостроительной политики. Решительно противопоставляя ее всему, что существовало ранее. В частности, принципиально отказываясь от традиционных, исторически складывавшихся принципов градоформирования социальных механизмов городского саморазвития, существовавших в дореволюционный период, таких как: а) наличие разнообразных форм самообеспечения населения продуктами питания и предметами первой необходимости, б) саморазвивающиеся частные формы обслуживания, в) рыночное саморегулирование, г) частное предпринимательство и конкуренция в жилищном строительстве, д) естественная самореализация местных традиций, обычаев и культурных ценностей в результате социокультурной самоорганизации населения, е) общественное самоуправление, ж) социально-экономическая самостоятельность и т. п. |
![Иллюстрация к книге — Градостроительная политика в СССР (1917-1929). От города-сада к ведомственному рабочему поселку [i_168.jpg] Иллюстрация к книге — Градостроительная политика в СССР (1917-1929). От города-сада к ведомственному рабочему поселку [i_168.jpg]](img/book_covers/063/63683/i_168.jpg)
![Иллюстрация к книге — Градостроительная политика в СССР (1917-1929). От города-сада к ведомственному рабочему поселку [i_169.jpg] Иллюстрация к книге — Градостроительная политика в СССР (1917-1929). От города-сада к ведомственному рабочему поселку [i_169.jpg]](img/book_covers/063/63683/i_169.jpg)
![Иллюстрация к книге — Градостроительная политика в СССР (1917-1929). От города-сада к ведомственному рабочему поселку [i_170.jpg] Иллюстрация к книге — Градостроительная политика в СССР (1917-1929). От города-сада к ведомственному рабочему поселку [i_170.jpg]](img/book_covers/063/63683/i_170.jpg)
![Иллюстрация к книге — Градостроительная политика в СССР (1917-1929). От города-сада к ведомственному рабочему поселку [i_171.jpg] Иллюстрация к книге — Градостроительная политика в СССР (1917-1929). От города-сада к ведомственному рабочему поселку [i_171.jpg]](img/book_covers/063/63683/i_171.jpg)
![Иллюстрация к книге — Градостроительная политика в СССР (1917-1929). От города-сада к ведомственному рабочему поселку [i_172.jpg] Иллюстрация к книге — Градостроительная политика в СССР (1917-1929). От города-сада к ведомственному рабочему поселку [i_172.jpg]](img/book_covers/063/63683/i_172.jpg)