Онлайн книга «Градостроительная политика в СССР (1917-1929). От города-сада к ведомственному рабочему поселку»
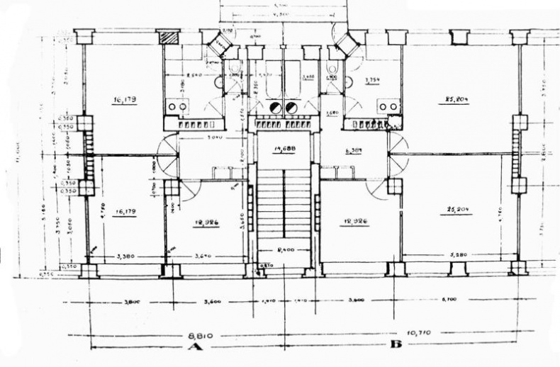
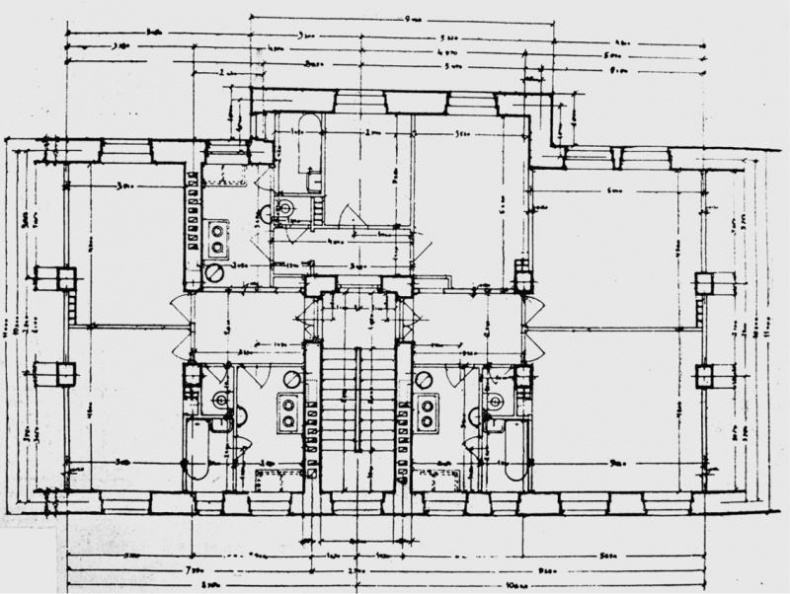
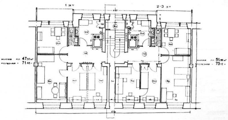
![]() Рис. 150. Рабочее жилищное строительство в Москве. Жилой дом, предназначенный к застройке на Дубровке (Рогожско-Симоновский р-н). Проект. 1927 ![]() Рис. 151. Рабочее жилищное строительство в Москве. Жилой дом, предназначенный к застройке в Хамовническом р-не. 1927 ![]() Рис. 152. Рабочее жилищное строительство в Москве. Дом работников милиции. Проект. 1927 В 1926–1927 гг. Московский совет при возведении жилищ как в «рабочих городских кварталах», так и в «рабочих пригородах» уже всецело ориентировался на тип каменного многоэтажного жилого дома (рис. 150–152). В этот период возводились жилые дома в три, а затем и в четыре этажа, с квартирами в 2–3 комнаты и кухней, центральным отоплением, канализацией, водопроводом, электрическим освещением, водонагревательной колонкой (рис. 153, 154), а там, где это возможно, и с газопроводом. Квартиры заселялись покомнатно-посемейно [506]. Разрабатывались и проекты домов коридорного типа с отдельными уборными и газовыми кухнями в каждой квартире (рис. 155), а также проекты домов коммунального типа – коридорной системы, с общими кухнями, уборными, столовой. ![]() Рис. 153. Рабочее жилищное строительство в Москве. Планировки домов, предназначенных к застройке в 1927 г. ![]() Рис. 154. Рабочее жилищное строительство в Москве. Планировки домов, предназначенных к застройке в 1927 г. ![]() Рис. 155. Рабочее жилищное строительство в Москве. Дом коридорного типа, запланированный к постройке в 1927 г. В советской системе централизованного управления всеми сферами хозяйственно-производственной деятельности московский опыт конкурсного проектирования приобретал роль образцово-показательного и если и не являлся официально обязательным, то по меньшей мере был «настоятельно рекомендуемым» для административных органов и проектных организаций всех прочих городов страны. Так, по примеру Московского совета в сентябре 1927 г. конкурс на составление проекта застройки жилых домов для рабочих семей был проведен в Самаре (проводило конкурс МАО) [507] (рис. 156–158). Условия конкурса, подобно конкурсу Моссовета, предписывали осуществлять застройку отведенного участка исключительно многоквартирными 3-этажными зданиями [508]. И хотя квартиры продолжали называться «индивидуальными» и проектировались в 3–4 комнаты [509], с передней, кухней-уборной [510], кладовой для продуктов [511], но фактически являлись коммунальными, потому что предназначались для покомнатно-посемейного заселения (и, в частности, поэтому проектировались без ванн) – в каждую квартиру по две семьи и по одному одинокому жильцу – всего 5–6 чел.) [512]. ![]() Рис. 156. Конкурс на составление проекта застройки участка в г. Самаре многоквартирными жилыми домами для рабочих семей. I премия. План. Арх. А. Э. Зильберт, Л. З. Чериковер. 1927 ![]() ![]() Рис. 157. Конкурс на составление проекта застройки участка в г. Самаре многоквартирными жилыми домами для рабочих семей. III премия. Генплан, Фасад, план. Гражд. инж. Г. Я. Вольфензон. 1927 |
![Иллюстрация к книге — Градостроительная политика в СССР (1917-1929). От города-сада к ведомственному рабочему поселку [i_159.jpg] Иллюстрация к книге — Градостроительная политика в СССР (1917-1929). От города-сада к ведомственному рабочему поселку [i_159.jpg]](img/book_covers/063/63683/i_159.jpg)
![Иллюстрация к книге — Градостроительная политика в СССР (1917-1929). От города-сада к ведомственному рабочему поселку [i_160.jpg] Иллюстрация к книге — Градостроительная политика в СССР (1917-1929). От города-сада к ведомственному рабочему поселку [i_160.jpg]](img/book_covers/063/63683/i_160.jpg)
![Иллюстрация к книге — Градостроительная политика в СССР (1917-1929). От города-сада к ведомственному рабочему поселку [i_161.jpg] Иллюстрация к книге — Градостроительная политика в СССР (1917-1929). От города-сада к ведомственному рабочему поселку [i_161.jpg]](img/book_covers/063/63683/i_161.jpg)
![Иллюстрация к книге — Градостроительная политика в СССР (1917-1929). От города-сада к ведомственному рабочему поселку [i_162.jpg] Иллюстрация к книге — Градостроительная политика в СССР (1917-1929). От города-сада к ведомственному рабочему поселку [i_162.jpg]](img/book_covers/063/63683/i_162.jpg)
![Иллюстрация к книге — Градостроительная политика в СССР (1917-1929). От города-сада к ведомственному рабочему поселку [i_163.jpg] Иллюстрация к книге — Градостроительная политика в СССР (1917-1929). От города-сада к ведомственному рабочему поселку [i_163.jpg]](img/book_covers/063/63683/i_163.jpg)
![Иллюстрация к книге — Градостроительная политика в СССР (1917-1929). От города-сада к ведомственному рабочему поселку [i_164.jpg] Иллюстрация к книге — Градостроительная политика в СССР (1917-1929). От города-сада к ведомственному рабочему поселку [i_164.jpg]](img/book_covers/063/63683/i_164.jpg)
![Иллюстрация к книге — Градостроительная политика в СССР (1917-1929). От города-сада к ведомственному рабочему поселку [i_165.jpg] Иллюстрация к книге — Градостроительная политика в СССР (1917-1929). От города-сада к ведомственному рабочему поселку [i_165.jpg]](img/book_covers/063/63683/i_165.jpg)
![Иллюстрация к книге — Градостроительная политика в СССР (1917-1929). От города-сада к ведомственному рабочему поселку [i_166.jpg] Иллюстрация к книге — Градостроительная политика в СССР (1917-1929). От города-сада к ведомственному рабочему поселку [i_166.jpg]](img/book_covers/063/63683/i_166.jpg)
![Иллюстрация к книге — Градостроительная политика в СССР (1917-1929). От города-сада к ведомственному рабочему поселку [i_167.jpg] Иллюстрация к книге — Градостроительная политика в СССР (1917-1929). От города-сада к ведомственному рабочему поселку [i_167.jpg]](img/book_covers/063/63683/i_167.jpg)