Книга Современная архитектура Японии. Традиции восприятия пространства, страница 16 – Нина Коновалова

Авторы: А Б В Г Д Е Ж З И Й К Л М Н О П Р С Т У Ф Х Ч Ш Ы Э Ю Я
Книги: А Б В Г Д Е Ж З И Й К Л М Н О П Р С Т У Ф Х Ц Ч Ш Щ Ы Э Ю Я
Бесплатная онлайн библиотека LoveRead.in

Онлайн книга «Современная архитектура Японии. Традиции восприятия пространства»

📃 Cтраница 16

Расположенный внутри постройки сад делит дом на крылья, которые на всех уровнях связываются внешними верандами (их присутствие – также традиционная особенность японских построек) – См. вкл.: илл.10. Кроме того, хозяином-архитектором продумано обособление частной жизни своих домочадцев. Право на личное пространство и невмешательство в образ жизни других утверждается и регулируется. Дом устроен так, чтобы спальня родителей была в конце одного маршрута, а детская – в конце другого: так, оставаясь фактически рядом, они отделяются и отдаляются психологически.

За последние годы в Японии построено несколько неповторимых и очень интересных частных домов совершенно миниатюрных размеров. В каждом проекте маленького дома архитектор пытается найти своеобразный противовес миниатюрному жилому пространству. Для этого все элементы постройки включаются в игру, максимально выявляющую преимущества микродома и направленную на создание оригинального и индивидуального жилища. Чрезвычайно интересно направление наделения создаваемых индивидуальных жилых домов уникальной способностью к изменению. Даже для семьи, живущей в доме всю свою жизнь, он должен постоянно оставаться удобным и комфортным. Другими словами, дом должен позволить людям меняться и сам должен меняться вместе с ними. Этому условию, выводящему на новый уровень качество жизни в переуплотненном мегаполисе, оказывается, не так сложно соответствовать. При проектировании «Дома в форме клина» (арх. М. Эндо, Токио – См. вкл.: илл.11, 12) было создано два типа пространства: то, которое будет со временем видоизменяться или выполнять другие функции, и постоянное, которое должно выполнять свое предназначение в течение всего срока жизни дома.

Иллюстрация к книге — Современная архитектура Японии. Традиции восприятия пространства [i_051.jpg]

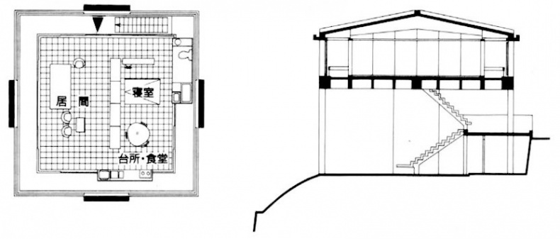
К. Кикутакэ. «Дом одной комнаты» (1958 г.)

Иллюстрация к книге — Современная архитектура Японии. Традиции восприятия пространства [i_052.jpg]

К. Кикутакэ. «Дом одной комнаты». План и разрез


Столовая, кухня, ванная комната запланированы как полностью удовлетворяющие образу жизни хозяев и не подлежащие изменению. Однако было предусмотрено несколько видов дополнительного пространства, которое выполняло бы функции резерва в расчете на будущее развитие. На первом этаже располагается большая студия-мастерская, которая может быть переоборудована для использования под другие цели или разделена на несколько помещений. Поднявшись по лестнице на самый верх, можно попасть в запасную комнату наподобие чердака. В настоящее время она служит местом уединения и отдыха, но в планах подразумевается как гостевая или детская.

При жилой площади дома в 34,5 м2 он кажется довольно просторным. Такое впечатление создается из-за частичного отсутствия перекрытий между этажами. Разделение происходит с помощью тонкой структурной сетки. По замыслу архитектора, хозяева дома должны непосредственно чувствовать связь пространства, что поощряет их на социальное взаимодействие и активный стиль жизни.

При создании проекта дома нужно было решить главную проблему – его освещение. Ведь сооружение должно было разместиться на достаточно узком участке шириной примерно 4,5 м, плотно окруженном существующей застройкой. В качестве решения была выбрана клиновидная форма постройки, где наклонная под 45º стена взяла на себя функции окна. В результате внутреннее пространство днем залито солнечным светом, а ночью дом похож на традиционный японский фонарик. Усиливает эффект освещенности белый цвет, в котором решен интерьер. Для того, чтобы оградить жилые комнаты от посторонних глаз, можно опустить экраны, предусмотренные на каждом этаже.

«Дом двойного потока» (арх. А. Ёнэда, Токио – См. вкл.: илл.13, 14) своим появлением должен был решить сразу несколько задач: поместиться на крошечном клочке земли и функционально «вписаться» в застройку торговой улицы. Действительно, перед будущими владельцами дома стоял серьезный выбор – переселиться в предместье или жить в доме, первые два этажа которого займут офисные помещения, что стало непреложным условием существования в коммерческой области города. Был выбран второй вариант. Плотная окружающая застройка продиктовала форму здания, постройка получилась необычайно узкая и высокая.

Название дома можно объяснить его функциональным устройством. В доме два типа помещений – офисы (занимающие два нижних этажа) и жилые комнаты (три верхних этажа), которые на имеют единой лестницы для сообщения между собой. Наоборот, в доме их предусмотрено две, так что даже лестница подчеркивает разное назначение пространства и выполняет также своего рода функцию их разделения. Лестница с одной стороны постройки позволяет передвигаться по магазину, с другой – по жилой части дома. Средний, третий этаж служит своеобразной переходной площадкой.

Жилая площадь дома – чуть больше 36 м2, из которых 29 м2 занимает первый жилой этаж, остальные же фактически представляют собой лестничные клетки, оборудованные под жилье. Лестница, занимающая главное пространство дома, осуществляет его вертикальное сообщение, которое соответствует ежедневному жизненному циклу семейства. Большую часть дня семья проводит на нижнем жилом этаже, только на ночь родители поднимаются наверх, в спальню. Дети же, кроме игр в своей комнате и в саду на крыше, получили возможность бесконечно бегать по этажам вверх и вниз, разворачивать свои захватывающие игры прямо на оснащенной защитной сеткой лестнице. После того, как дети подрастут и у семьи появятся новые потребности, здание предусматривает полностью новое деление.

Освещение часто бывает одной из самых ярких и художественных особенностей дома. Японцы, с их склонностью к созерцательности и желанием жить в гармонии с природой, уделяют большое внимание нюансам естественного освещения, его изменению на протяжении дня в зависимости от движения и преломления солнечных лучей. Но иногда кажется, что добиться этого просто невозможно. Перед архитектором дома в Нака-Икэгами (арх. Т. Уцуми – См. вкл.: илл.15, 16) изначально стояла довольно сложная задача: его постройка должна была не только выделяться среди плотно окружающих ее домов, но и суметь полноценно функционировать при множестве устремленных на нее окон, расположенных часто на расстоянии вытянутой руки. Это был настоящий вызов профессионализму архитектора. Окна в доме сделать было практически невозможно, поэтому архитектор предусмотрел стеклянную крышу, которая, круто скашиваясь, отсекала постройку под острым углом, не позволяя ей стать похожей на обычную коробку. Длинное окно в крыше в самом низком углу расположено как раз на уровне глаз и воспринимается довольно обычно (цукиагэ-мадо). Доходя до самой высокой части дома, такое окно становится длинным промежутком, через который проникает дневной свет, перемещаясь в течение дня по всему дому.

Правда, при оригинальных архитектурных находках, которые явились решением проблемы освещения, не обошлось без компромиссов. Расположенная на первом этаже ванная и детская спальня на втором этаже вообще не имеют окон. Но будущие хозяева строящегося дома согласились с тем, что эти комнаты будут использоваться преимущественно вечером, а значит, только с искусственным освещением. Таким образом, здесь приемлемо полное отсутствие дневного света.

Вход
Поиск по сайту
Ищем:
Календарь