Книга Токийский Зодиак, страница 19 – Содзи Симада

Авторы: А Б В Г Д Е Ж З И Й К Л М Н О П Р С Т У Ф Х Ч Ш Ы Э Ю Я
Книги: А Б В Г Д Е Ж З И Й К Л М Н О П Р С Т У Ф Х Ц Ч Ш Щ Ы Э Ю Я
Бесплатная онлайн библиотека LoveRead.in

Онлайн книга «Токийский Зодиак»

📃 Cтраница 19

Полиция тут же зашевелилась бы. Полицейских, если б они явились, конечно, можно было отшить: мол, дом мой, и если есть вопросы, приходите с ордером. Но я на его месте подобрал бы другой дом, про который никто ничего не знает. В доме Кадзуэ невозможно было спокойно работать. Невозможно по-настоящему оценить свое творение. Требовалось более уединенное место.

– Согласен, – проговорил Митараи. – Однако многие все еще считают, что Азот была создана в том самом доме. Верно?

– Да, они думают, что преступник убил Кадзуэ, чтобы устроить у нее мастерскую.

– Но если у убийцы была группа крови 0 и это не Хэйтаро, значит, мы неизбежно склоняемся к версии о чужаке.

– Совершенно верно. Вот мы и подошли к узловому моменту.

– Как я понимаю, убийство Кадзуэ осталось нераскрытым?

– Точно.

– Почему же полиция не смогла найти грабителя?

– Таких случаев сколько угодно. Предположим, мы с тобой сейчас поедем на Хоккайдо, убьем там одинокую старушку и украдем деньги, которые она хранила под полом. Весьма вероятно, что полиция нас не найдет, потому что нас с этой старушкой ничто не связывает. Очень много преступлений такого рода не раскрывается.

С другой стороны, когда речь идет о предумышленных убийствах, у преступника обязательно есть четкий мотив. Если мотив удается определить, дело, как правило, рано или поздно раскрывают. Обязательно устанавливают алиби замешанных в нем лиц.

Но с убийствами в семействе Умэдзава проблема как раз и заключается в мотивах, вернее, в их отсутствии. В «убийствах Азот» мотива нет ни у кого, кроме Хэйкити Умэдзавы, которого самого убили.

– М-м…

– Но мне совсем не хочется думать о чужаке. Если это сотворил человек, о котором никто ничего раньше не слышал, все напряжение теряется.

– Значит, ты считаешь, что убийство Кадзуэ – чистая случайность?.. Понятно. И все-таки опиши мне место происшествия.

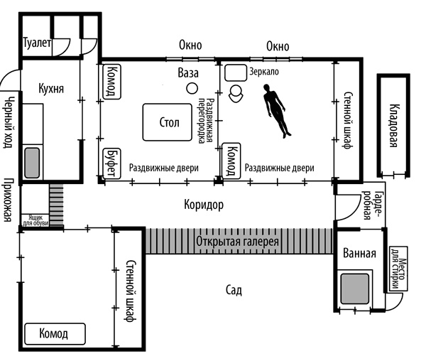
– Хорошо. Вот книга, вот схема. Добавить к ней особо нечего. Самое обычное дело. Кадзуэ нашли на полу. Она была одета в кимоно, но без нижнего белья. Следов борьбы на одежде не обнаружено.

Иллюстрация к книге — Токийский Зодиак [i_003.jpg]

– Интересно.

– Ничего удивительного. В те времена многие женщины ходили без белья. Ящики из шкафов были выдвинуты, содержимое разбросано по дому. Деньги исчезли. В комнате, где лежала Кадзуэ, стояло трюмо, но его преступник не тронул. Створки были аккуратно сложены, на подставке для зеркала никаких следов. Ваза, послужившая орудием убийства, валялась на татами в соседней комнате за раздвижной перегородкой.

Тело Кадзуэ лежало, как показано на рисунке, хотя, возможно, преступник перетащил ее в комнату уже после того, как ударил по голове. Рана на голове глубокая, удар был сильный, но крови на этом месте почему-то не обнаружили. Убийца мог перетащить свою жертву туда, где ему было удобнее ее насиловать. Странно, что полиция не сумела установить, где преступник нанес Кадзуэ смертельный удар.

– Погоди. Ты говоришь, он ее изнасиловал, когда она уже была мертва?

– Ну да.

– Это точно?

– Очень похоже, что так и было.

– Что-то здесь не вяжется. Ты только что сказал, что одежда Кадзуэ была в порядке. Если мы имеем дело со случайным ограблением и преступником, действующим настолько легкомысленно, что он даже не пытается скрыть свою группу крови и пол, неужели он, надругавшись над женщиной, будет приводить в порядок ее одежду?

– М-да… Пожалуй…

– Ну хорошо. Продолжай.

– Хм-м… Странно, что полиция не установила, где Кадзуэ получила смертельный удар по голове. Вряд ли убийство произошло вне дома. Это маловероятно. Хотя есть люди, серьезно рассматривающие такую возможность. Споры идут до сих пор. В принципе, конечно, все может быть, но я не вижу оснований для такой точки зрения. Осматривая место преступления, полиция обнаружила на зеркале трюмо следы крови. Ее стирали очень тщательно, но до конца так и не стерли. Как выяснилось, кровь принадлежала Кадзуэ.

– То есть ее убили, когда она сидела перед зеркалом и красилась?

– Не похоже. Косметики на ней почти не было. Скорее, она причесывалась, когда преступник напал на нее.

– Она была повернута лицом к зеркалу?

– Да, лицом.

– Интересно! Тогда я опять не понимаю. Дом был одноэтажный?

– Да.

– Судя по рисунку, сбоку от трюмо была раздвижная перегородка. Если Кадзуэ сидела лицом к зеркалу, прямо за спиной у нее была еще одна перегородка, отделявшая комнату от коридора. Грабитель мог проникнуть в комнату, где находилась Кадзуэ, либо из соседней комнаты, отодвинув перегородку, либо из-за спины женщины, из коридора. Других путей у него не было.

Предположим, преступник вошел в комнату из коридора. Кадзуэ увидела бы его в зеркале трюмо. И продолжала спокойно сидеть, дожидаясь, пока он ее ударит? Это невозможно. Она непременно вскочила бы и бросилась бежать.

А если грабитель вошел сбоку? Тогда он все равно бы отразился в одной из створок трюмо. Даже если Кадзуэ его не заметила, она почувствовала бы, что в комнату кто-то вошел, услышав звук отодвигавшейся перегородки. Она должна была инстинктивно обернуться. Кстати, удар был нанесен спереди?

– Нет, мне кажется… Подожди минутку. Нет, Кадзуэ получила удар по затылку. Она сидела спиной к преступнику.

– Хм-м… Любопытно! Убийца, конечно, мог влезть в дом через окно, но это еще более маловероятно. Пока он лез в окно, Кадзуэ спокойно расчесывала волосы и ждала, когда он ее пристукнет?

Очень странно! Версия о случайном ограблении явно не прокатывает. Кадзуэ знала своего убийцу. Иначе быть не может. Жертва сидит на стульчике перед трехстворчатым зеркалом. И в таком положении ее спокойно убивают. Она не встает, не пытается спастись, даже не оборачивается. Так и сидит, уставившись в зеркало. Ничего не предпринимает, даже видя, как преступник приближается сзади.

Это был ее знакомый, причем довольно близкий; готов держать пари. Кадзуэ должна была видеть его в зеркале. Я абсолютно уверен, что мы имеем дело не со случайным ограблением и отнюдь не с опрометчивым человеком. Разве такой тип будет тщательно стирать кровь с зеркала? Преступник сделал это, чтобы скрыть близкие отношения с жертвой. Тут не может быть сомнений. Это же такая зацепка!

Жертва и убийца были близки. Даже очень близки. Возможно, даже были любовниками. Разве женщина будет сидеть спиной к мужчине, которого мало знает? Тем более женщина тридцатых годов.

И вот что еще странно. Зачем мужчине понадобилось насиловать женщину, с которой он и без того находился в интимных отношениях? Да еще мертвую? Думаю, он имел достаточно возможностей получить удовольствие, когда Кадзуэ была жива. Секс у них был. Но до убийства.

Вход
Поиск по сайту
Ищем:
Календарь