Книга Работы по дереву. Мебель для дома своими руками, страница 26 – Билл Хилтон

Авторы: А Б В Г Д Е Ж З И Й К Л М Н О П Р С Т У Ф Х Ч Ш Ы Э Ю Я
Книги: А Б В Г Д Е Ж З И Й К Л М Н О П Р С Т У Ф Х Ц Ч Ш Щ Ы Э Ю Я
Бесплатная онлайн библиотека LoveRead.in

Онлайн книга «Работы по дереву. Мебель для дома своими руками»

📃 Cтраница 26

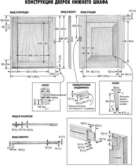
3. Вырежьте гнезда и шипы. Гнезда можно фрезеровать с тем же шаблоном, что использовался для гнезд фронтальных рам. Вам понадобится прямая фреза 10 мм (⅜ дюйма).

Шипы вырезайте на циркулярке, используя ваш шипорезный шаблон. После формирования шипов ножовкой с обушком вырежьте плечики шипов. Углы шипов скруглите напильником, чтобы шипы подошли к фрезерованным гнездам.

4. Сделайте филенки. После склеивания панелей и обрезания их по размеру, вам останется только вырезать выпуклость. Скосы по периметру выпуклой части имеют ширину примерно 64 мм (2·½ дюйма). Между ними и выпуклой плоскостью нет заметной границы. Из-за ширины и отсутствия пограничного ободка легче всего делать скосы на циркулярке.

Расположите продольный упор так, чтобы диск наклонялся от него. Поднимите диск как можно выше и наклоните его. Установите упор так, чтобы на поверхности стола отстоял от внутренней поверхности диска на 8 мм (5/16 дюйма). Такая установка должна обеспечить требуемый скос.

Циклей или шкуркой удалите все следы пиления.

5. Соберите дверки. Для пробы соберите дверки без клея. При необходимости сделайте исправления пригонки соединений и поправки прямоугольности рамы. Окончательно зашлифуйте все детали. Затем склейте сборку. Шипы вклейте в гнезда, но не вклеивайте филенки в пазы — они должны иметь некоторую свободу для естественных деформаций.

После демонтажа зажимов вырежьте скосы на навесных стойках и обеих перекладинах (притворная стойка НЕ имеет скосов). Это такие же скосы, что и скосы на лицевой панели выдвижного ящика и филенок шкафа.

6. Навесьте дверки. Первым делом убедитесь, что они хорошо пригнаны к дверному проему. По периметру дверки должен быть зазор около 3 мм (1/16 дюйма). При необходимости прострогайте кромки дверок, чтобы получить нужный зазор.

Петли устанавливаются в зарезки (углубления) как на дверках, так и на фронтальной раме. Стамеской сделайте зарезки и установите петли.

Запор установите, как показано на Виде спереди на рисунке Конструкция дверки нижнего шкафа. Для того чтобы дверки оставались запертыми, нужно установить на внутренней стороне левой дверки поворотную задвижку. Повернутая вниз, она входит в вырезанный в средней полке паз и удерживает левую дверку. Запор на правой дверке фиксирует ее относительно левой, и обе дверки оказываются запертыми. Ножовкой с обушком выпилите на конце задвижки вырез, затем напильником и шкуркой скруглите углы. Просверлите направляющее отверстие и установите поворотную задвижку с помощью шурупа с круглой головкой для дерева 4,2×38 мм (#8 × 1·½ дюйма).

Иллюстрация к книге — Работы по дереву. Мебель для дома своими руками [i_118.jpg]
Сделайте остекленные дверки

1. Вырежьте детали. Размеры даны в Спецификации. Как и у нижних дверок, детали рамы имеют толщину 22 мм (⅞ дюйма), поэтому их нужно выпилить (или выстрогать) из материала 32 мм (5/4 дюйма).

2. Вырежьте профили на перекладинах, стойках и средниках. Здесь это просто скос. Возьмите небольшую коническую фрезу для скосов выпуклых филенок — мы использовали фрезер со столом и фрезу № 85583M фирмы Bosch.

Отрегулируйте упор так, чтобы получить ширину реза 11 мм (7/16 дюйма). Отфрезеруйте профиль на одной кромке каждой перекладины и каждой стойки и на обеих кромках средников. Рез можно делать от конца до конца. Вам нужен ободок 2 мм (1/16 дюйма) между скосом и плоскостью около стекла.

3. Сделайте фальцы на перекладинах, стойках и средниках. Для завершения профилирования отфрезеруйте фальцы для стекла. Их ширина и глубина составляют 6 мм (¼ дюйма). На перекладинах и стойках делайте фальцы на одной кромке, от конца до конца. На средниках фальцы делаются на двух кромках и тоже от конца до конца.

4. Вырежьте гнезда и шипы. Для соединения перекладин и стоек шипом в гнездо заплечики шипов должны пригоняться под профиль стоек или профиль должен быть срезан там, где перекладина примыкает к стойке. Здесь легче сделать второй вариант.

Сначала профрезеруйте гнезда. Сделайте их глубину 32 мм (1·¼ дюйма); после срезания профиля их глубина составит 25 мм (1 дюйм). Определите, где перекладины будут пересекаться со стойками, и ножовкой с обушком сделайте скос только на декоративном профиле. Затем срежьте соответствующий скос декоративного профиля на конце перекладины, как показано на рисунке Конструкция остекленных дверок.

Иллюстрация к книге — Работы по дереву. Мебель для дома своими руками [i_119.jpg]

Шипы вырезаются на циркулярке обычным способом, но тут потребуется дополнительная операция. Шипы должны быть длиной 25 мм (1 дюйм). Сделайте на перекладинах резы заплечиков. Затем сделайте скосы на декоративном профиле. Это можно сделать, наклонив диск на 45° и направляя заготовку по угловому упору. Сделайте резы граней шипа и в заключение подрежьте верхние и нижние кромки и скруглите шипы под форму гнезд.

5. Соберите дверки. Перед сборкой вам надо пригнать концы средников. Так как здесь нет шипа, вокруг которого работать, и поскольку средники такие тонкие, это сделать нетрудно. Проблема в том, чтобы получить точную пригонку и не сделать слишком короткой ни одну деталь.

Базовый рез сделайте выкружной пилой и маленьким напильником подровняйте его насколько необходимо. Пригоните один конец каждого средника. Соберите перекладины со стойками и отмерьте и разметьте нужные длины всех средников. Разметьте и обрежьте средники по длине, пригоняя их вторые концы.

По окончании все должно соединяться легко и точно. Склейте дверки.

После снятия с дверок зажимов, срежьте скосы на навесных стойках и верхних перекладинах (на нижних перекладинах и притворных стойках скосы НЕ делаются). Скосы те же самые, что и на нижних дверках.

6. Навесьте дверки. Обеспечьте зазоры по периметру дверок в дверном проеме размером примерно 2 мм (1/16 дюйма). Для получения нужного зазора при необходимости подстрогайте дверки.

Петли на остекленных дверках карточные, но ставятся они без зарезки — на поверхности. Их легко устанавливать, если положить шкаф задней стенкой вниз и подклинить дверки в требуемом положении. Уложите петли на дверки, выровняйте их, затем просверлите направляющие отверстия и закрепите шурупами.

Запор закрепите, как показано на Виде спереди на рисунке Конструкция остекленных дверок. Сделайте и установите такую же поворотную задвижку, как на левой дверке нижнего шкафа.

Иллюстрация к книге — Работы по дереву. Мебель для дома своими руками [i_120.jpg]
Вход
Поиск по сайту
Ищем:
Календарь