Онлайн книга «Броненосцы типа «Канопус», 1896–1922 гг.»
|
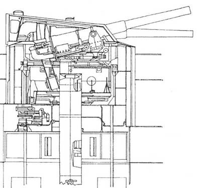
Вооружение это будет дополняться двенадцатью 6 дм скорострельными пушками и еще тридцатью пушками других, меньших, калибров. Кроме всего этого, будет еще по четыре подводных минных аппарата. Судовые механизмы будут тройного расширения, причем ожидается скорость хода в 1 8 уз, вместо 1 7,4 уз., как у "Маджестика". Это увеличение быстроходности обуславливается отчасти принятием на новых броненосцах бельвилиевских водотрубных котлов. Причем небольшое сбережение в весе, приходящемся на 1 и.с., было утилизировано для увеличения полного числа этих сил. Это будут первые английские броненосцы с водотрубными котлами. Для обеспечения большей экономии в расходе угля каждый из 20 бельвилиевских котлов броненосца будет снабжен особым подогревателем питательной воды. Полная нагревательная поверхность 20 котлов составит 24155 кв.ф., площадь колосниковой решетки 1035 кв.ф. Котлы рассчитаны на давление пара в 300 фн./кв. ф., которое в паровой трубе будет понижаться до 250 фн. Ввиду такого высокого давления паровые цилиндры будут снабжены поршневыми золотниками, кроме цилиндров низкого давления, у которых будут поставлены обыкновенные двухпролетные золотники. На постройку и вооружение новых броненосцев положен 20-месячный срок. Что касается назначенных для этих судов имен, то все это – исторические имена, тесно и почетно связанные с различными достопамятными событиями английской морской истории. Так, по словам "Times", "Канопус" назван в честь 80-пушечного корабля, взятого в Абукирском сражении; старый "Канопус" принимал также участие в Дёквортском деле и в свое время считался наилучшим двухдечным кораблем. Имя "Голиаф" связано с сражениями Абукирским, Сент-Виниентским, у Копенгагена и другими. "Океан"- имя флагманского корабля средиземноморской эскадры лорда Коллингвуда в 1 808 году. "Глори" участвовал в победе лорда Гоу в славный день 1 июня и в деле сэра Роберта Кальдера. Наконец, корабли, носившие имя "Альбион", принимали участие в операциях войны с Соединенными Штатами, в бомбардировании Алжира, в Наваринском сражении и в Русской войне 1854 г. при бомбардировании Севастополя. Противоминный калибр первоначально состоял из 6 12- фунтовых орудий, находившихся на верхней палубе и 12 3-фунтовых на марсе. Но во время проектирования, летом 1896 года, увеличили их число на 4 12-фунтовых орудия, которые разместили в казематах на главной палубе в носу и корме. Затем число 3-фунтовых орудий на марсах сократилось с 12 до 6. ![]() Броненосец “Альбион". 1899 г. (Продольный разрез башенной установки для двух 12-дм орудий) Из книги О. Parkes British Battleships. London. 1966. ![]() Броненосец “Вендженс". 1902 г. (Продольный разрез башенной установки для двух 12-дм орудий) Из книги Burt R.A. British Battleships 1889-1904. L. 1988. В отношении бронирования, как уже упоминалось выше, это были первые британские броненосцы, получившие крупповскую цементированную броню, сопротивляемость которой оказалась на 30% больше гарвеевской. Крупповская броня сменила гарвеевскую во всех важных местах, за исключением казематов, палуб и бронирования систем подачи боезапаса. Также они стали первыми линейными кораблями, после “Дредноута” (1875 г.), имевшими вертикальное бронирование на всем протяжении борта. Продлить пояс до носа У. Уайт предложил еще в 1888 году, когда рассматривался проект “Роял Соверена”, но из-за несогласия Бюро кораблестроения, тогда пришлось усилить бронирование в средней части корпуса, ограничившись разделением на отсеки в оконечностях. “Канопусы” стали первыми британскими броненосцами, получившими две внутренние надводные бронированные палубы. Появление дополнительной палубы было вызвано информацией об установке на французских броненосцах гаубиц, имевших при стрельбе настильную траекторию полета снарядов. Это стало известно во время проектирования “Канопусов”, и многие старые идеи У. Уайта удалось реализовать под идеей борьбы с этой опасностью. 1-дм броня имелась на главной палубе, по замыслу на ней должны были взрываться фугасные снаряды. Плоская секция на средней палубе, которая находилась ниже, имела толщину 2-дм вместо 3-дм на “Маджестике”, поэтому горизонтальное бронирование у двух серий кораблей было одинаковым. Французские корабли так и не были вооружены гаубицами, за исключением одного, на котором проводились опыты, но практика установки двух или более бронированных палуб сохранилась на английских линейных кораблях вплоть до построенных в 1925 г. “Нельсона” и “Роднея”. Защита кораблей тесно связана с их наступательными возможностями и скоростью хода. На “Канопусах” максимальная толщина брони пояса, барбетов, башен была меньше, по сравнению с толщиной этих элементов на “маджестиках”. Это было сделано для сохранения аналогичного вооружения и аналогичной скорости при более низком водоизмещении, но следует помнить, что некоторое сокращение толщины брони отчасти компенсировалось улучшением ее качества. ![]() Броненосцы типа “Канопус". 1899 г. (Наружный вид и планы палуб с указанием системы бронирования) Из справочника “The Naval Annual, 1899’’. Изд. Т.A. Brassey. Portsmoyth. 1899. Защита артиллерии вспомогательного калибра и общая толщина горизонтального бронирования были такими же, как на “маджестиках”, но скосы на средней палубе за поясом были тоньше на 1 дм . Новинками в бронировании “канопусов” стали: использование крупповской брони вместо гарвеевской, тонкое бронирование в носовой части, установка плоской бронированной палубы в дополнение к скосам, за бронированным поясом. 2-дм пояс в носовой части на кораблях этого типа был сразу же замечен и подвергся критике, его называли не иначе как “мягкая оконечность”. Критики считали, что он не сможет противостоять огню даже средних калибров, а сыграть свою роль только при ведении огня с больших дистанций. На самом деле его основной задачей было минимизировать разрушения в носовой части, которые были бы при полностью не забронированном баке, при попадании снарядов небольших калибров или осколков, что могло привести к затоплению оконечности и резкой потере хода. Следует отметить, что это было только частичное применение теории У. Уайта, которую он предлагал еще для броненосцев типа “Роял Соверен”. Он планировал установку пояса из плит средней толщины. Во время строительства защита броненосцев подверглась критике. В газете “Таймс”, после нападок на сам проект и судостроителей, утверждалось, что эти корабли не более чем “броненосцы второго класса, которые налогоплательщикам будут стоить по цене первого”. В ответ на постоянные враждебные выпады, направленные против его детища, У. Уайт в одном из номеров той же газеты поместил следующий комментарий: “Внимание, которое уделяется установке 6-дм брони, постоянные дискуссии в прессе и Парламенте, постепенно перешли в критику проекта в общем. |
![Иллюстрация к книге — Броненосцы типа «Канопус», 1896–1922 гг. [pic_5.jpg] Иллюстрация к книге — Броненосцы типа «Канопус», 1896–1922 гг. [pic_5.jpg]](img/book_covers/077/77699/pic_5.jpg)
![Иллюстрация к книге — Броненосцы типа «Канопус», 1896–1922 гг. [pic_6.jpg] Иллюстрация к книге — Броненосцы типа «Канопус», 1896–1922 гг. [pic_6.jpg]](img/book_covers/077/77699/pic_6.jpg)
![Иллюстрация к книге — Броненосцы типа «Канопус», 1896–1922 гг. [pic_7.jpg] Иллюстрация к книге — Броненосцы типа «Канопус», 1896–1922 гг. [pic_7.jpg]](img/book_covers/077/77699/pic_7.jpg)