Книга Линейные корабли “Эджинкорт”, “Канада” и “Эрин”. 1910-1922 гг., страница 6 – Борис Козлов

Авторы: А Б В Г Д Е Ж З И Й К Л М Н О П Р С Т У Ф Х Ч Ш Ы Э Ю Я
Книги: А Б В Г Д Е Ж З И Й К Л М Н О П Р С Т У Ф Х Ц Ч Ш Щ Ы Э Ю Я
Бесплатная онлайн библиотека LoveRead.in

Онлайн книга «Линейные корабли “Эджинкорт”, “Канада” и “Эрин”. 1910-1922 гг.»

📃 Cтраница 6

Он обладал следующими индивидуальными особенностями:

1. Нес на себе наибольшее (по сравнению с "адмиралтейскими" проектами) количество орудий главного калибра, чем какой-либо другой крупный корабль Королевского флота.

2. Последний линейный корабль британского флота, вооруженный 12-дм (305-мм) 45-калиберными орудиями главного калибра.

3. Имел самое большое соотношение длина-ширина" (L/B) 7,58:1 среди линкоров Королевского флота.

4. Нес на себе самую мощную и многочисленную среднюю артиллерию — двадцать 6-дм (152-мм) 50-калиберных орудий.

Согласно его внутреннему описанию он был "комфортабельным" кораблем и особенно хорошо были устроены помещения в его кормовой части, предназначенные для офицерского состава. Дорогая меблировка, специально заказанная бразильцами, отличалась непомерной роскошью. После реквизиции корабля и зачисление его в состав Королевского флота вся эта "роскошь" была убрана, однако, в офицерской кают-компании сохранили оставшийся от последнего владельца изумительной красоты фарфор, напоминавший британским офицерам о недолгом турецком владении кораблем.

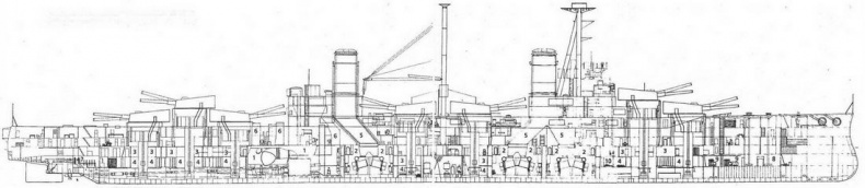
Иллюстрация к книге — Линейные корабли “Эджинкорт”, “Канада” и “Эрин”. 1910-1922 гг. [img_8.jpg]

Линейный корабль "Эджинкорт, 1918 г. (Продольный разрез и поперечные сечения)

1. Машинное отделение.

2. Котельное отделение.

3, Погреб для 305-мм зарядов.

4. Артиллерийский погреб 305-мм снарядов.

5. Дымоходы.

6. Вентиляционная шахта.

7. Отделение рулевой машины.

8. Отсек шпилевой машины.

9. Отсек торпедных аппаратов.

10. Погреб для 152-мм зарядов.

Иллюстрация к книге — Линейные корабли “Эджинкорт”, “Канада” и “Эрин”. 1910-1922 гг. [img_9.jpg]
Иллюстрация к книге — Линейные корабли “Эджинкорт”, “Канада” и “Эрин”. 1910-1922 гг. [img_10.jpg]
Иллюстрация к книге — Линейные корабли “Эджинкорт”, “Канада” и “Эрин”. 1910-1922 гг. [img_11.jpg]

Артиллерия главного калибра линейного корабля "Эджинкорт" состояла из четырнадцати 305-мм орудий, размещенных в семи двухорудийных башнях. Установленные на "Эджинкорте" скорострельные 305-мм орудия с относительной длиной ствола 45 калибров (от дульного до казенного среза), раздельного заряжания относились к "тринадцатой модели" этого калибра (по официальной британской терминологии "Марка XIII" или Мк XIII) и были спроектированы Бюро вооружений компании "Армстронг" на основе уже отработанного проекта компании "Виккерс" 305-мм 45-калиберного орудия "десятой модели" (Мк X) специально для линкоров-додредноутов типа "Лорд Нельсон". Надо отметить, что "Эджинкорт" был последним линейным кораблем в Королевском флоте, который вошел в его состав, вооруженный 305-мм 45-калиберными орудиями. Традиционно для британского флота стволы тяжелой морской артиллерии скреплялись при помощи высокопрочной калиброванной стальной проволоки, которая наматывалась несколькими слоями на внутреннюю трубу до нарезки. И орудия и башенные установки были изготовлены на орудийной фабрике в Эльсвике.

Заряжание производилось при любом положении орудия, время заряжания составляло 20 сек. Высота орудийных цапф над нормальной ватерлинией составляла: башни "А" — 9296 мм, башни "В" — 12497 мм, башен "Р" и "Q" 9144 мм, башен "X" и "Z" — 7315 мм, башни "У" — 10515 мм. Сектора обстрела главных орудий (согласно "Jane’s") на оба борта были следующие: башен "А" и "Z" — 145°; башни "В" — 140°; башен "Р" и "Q" — 115°; башни "X"— 120°; башни "У"— 150°.


Основные баллистические характеристики орудий главного калибра линейного корабля "Эджинкорт"

1 Калибр, мм 305
2 Количество орудий, тип, принято на вооружение 14, Мк XIII ("Марка ХIII"), 1910 год
3 Установка Двухорудийнная башня
4 Вес полный (включая затвор), кг Согласно Topliss (6), 60 650 кг
5 Длина полная, мм Согласно Topliss (6), 14 140; Согласно Burt (2), 14,162
6 Длина канала ствола орудия, мм/клб 13 725/45
7 Длина нарезной часть, мм Согласно Topliss (6), 11465 мм
8 Материал Сталеникелевая нарезная труба с проволочной навивкой
9 Длина каморы, мм Согласно Topliss (6), 2100,8; Согласно Burt (2), 2082,8
10 Объем каморы, дм³ Согласно Topliss (6), 295
11 Нарезка Многоканальная, постоянного шага, шаг 30 калибров
12 Количество нарезов 72, прямоугольного сечения
13 Затвор Винтового типа
14 Начальная скорость снаряда, м/сек Согласно Topliss (6), 830,58; Согласно Burt (2), 823
15 Дульная энергия, ТМ Согласно Topliss (6), 14 569,4
16 Угол возвышения, град. Согласно Topliss (6), 16; Согласно Burt (2), 15
17 Вес снаряда, кг 385,56
18 Вес заряда (кордит и "MD", кг Согласно Topliss (6), 129,3; Согласно Burt (2), 127
19 Радиус оживала Согласно Topliss (6), 4 калибра
20 Максимальная дальность стрельбы, м Согласно Topliss (6), 18 913; Согласно Burt (2), 18 300

Вход
Поиск по сайту
Ищем:
Календарь