Онлайн книга «Танки III Рейха. Том III»
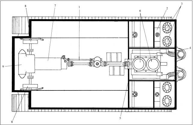
![]() Компоновка корпуса (продольный разрез): 1 — панель приборов; 2 — карданные валы; 3 — масляный фильтр; 4 — воздушные фильтры; 5 — магнето; 6 — выхлопной коллектор; 7 — генератор; 8 — масляный радиатор; 9 — топливные насосы; 10 — нагнетатель воздуха; 11 — водооткачивающий насос; 12 — привод механизма поворота башни; 13 — труба подачи воздуха; 14 — коробка передач; 15 — педаль главного фрикциона; 16 — механизм поворота; 17 — рычаг переключения передач. ![]() Компоновка корпуса (план): 1 — вал отбора мощности к механизму поворота башни и водооткачивающему насосу; 2 — радиатор; 3 — вентиляторы; 4 — магнето; 5 — огнеупорная перегородка; 6 — воздушные фильтры; 7 — коробка передач; 8 — тормоза; 9 — механизм поворота. БАШНЯ подковообразной формы — сварная, с соединением листов в шип и вертикальными стенками, выполнявшимися из цельного гнутого листа. В передней части башни в литой маске устанавливались пушка, спаренный пулемет и прицел. Башня приводилась во вращение гидравлическим поворотным механизмом мощностью 4 кВт. Скорость поворота зависела от частоты вращения коленчатого вала. Отбор мощности производился от коробки передач с помощью специального карданного вала. При 1500 об/мин коленчатого вала поворот башни на 360° осуществлялся за 1 мин. При неработающем двигателе башню поворачивали вручную. Башня, вследствие большого вылета пушки и тяжелой броневой маски, была неуравновешена, что делало невозможным ее поворот вручную при крене в 5°. На ее крыше устанавливалась командирская башенка с шестью, а затем с семью смотровыми приборами. ![]() Схема бронирования тяжелого танка «Тигр». ВООРУЖЕНИЕ. Основное вооружение «Тигра» — пушка 8,8 cm KwK 36 калибра 88 мм, производившаяся заводом Wolf в Магдебурге. Ствол пушки имел длину 56 калибров — 4928 мм; вместе с дульным тормозом — 5316 мм. Масса пушки — 1310 кг. Вертикальная наводка — в пределах от -6,5° до +17°. Предельная длина отката — 580 мм. Пушка уравновешивалась с помощью специального гидравлического устройства, расположенного под ее казенной частью. С пушкой был спарен 7,92-мм пулемет MG34. Курсовой пулемет размещался в лобовом листе подбашенной коробки в шаровой установке. На командирской башенке позднего типа на специальном устройстве Fliegerbeschutzgerat 42 можно было установить зенитный пулемет MG34. ![]() Корпус серийного «Тигра» из коллекции Королевского танкового музея в Бовингтоне (Великобритания) во время реставрации. Танки «Тигр» первоначально оснащались бинокулярным телескопическим ломающимся прицелом TZF-9а, а затем монокулярным TZF b. При изменении вертикального угла наведения вооружения изменялось и положение объективной части прицелов, окулярная же часть оставалась неподвижной, что обеспечивало работу с вооружением во всем диапазоне вертикального угла наведения без изменения положения наводчика. Эти прицелы имели 2,5-кратное увеличение и поле зрения 23°. Курсовой пулемет MG34 имел 1,8-кратный телескопический прицел KZF 2. Боекомплект пушки состоял из 92 выстрелов, пулеметов — из 5100 патронов. ![]() ПРИМЕЧАНИЕ. Таблица составлена на основании немецких источников. ДВИГАТЕЛЬ И ТРАНСМИССИЯ. На танке устанавливались двигатели Maybach HL 210Р30 или Maybach HL 230Р45 (с 251-й машины). Двигатели 12-цилиндровые, V-образные (развал цилиндров — 60°), карбюраторные, четырехтактные мощностью 650 л.с. и 700 л.с. при 3000 об/мин соответственно. Диаметр цилиндра — 125 и 130 мм. Ход поршня 145 мм. Степень сжатия — 7 (HL 210Р30) и 6,8 (HL 230Р45). Рабочий объем — 21 353 см2 и 23 095 см2. Сухая масса двигателей — 1200–1300 кг. Следует подчеркнуть, что двигатель HL 230Р45 был практически идентичен двигателю HL 230Р30 танка «Пантера». Для повышения жесткости картер этого двигателя был выполнен из серого чугуна без разъема в плоскости коленчатого вала, то есть имел так называемую «туннельную» конструкцию. ![]() ![]() Фото вверху — вид на место механика-водителя. Управление танком осуществлялось с помощью штурвала. Характерной формы вентиль рядом с прибором наблюдения предназначен для подъема и опускания броневой заслонки. Фото внизу — так выглядела панель приборов танка «Тигр». Справа от штурвала — рычажок переключения передач. Топливо — этилированный бензин с октановым числом не ниже 74. Емкость четырех бензобаков — 534 л. Расход топлива на 100 км при движении по шоссе — 270 л, по бездорожью — 480 л. Подача топлива принудительная, с помощью четырех топливных насосов Solex. Карбюраторов — четыре, марки Solex 52FFJIID. Система охлаждения — жидкостная, с двумя радиаторами. По обеим сторонам двигателя располагались сдвоенные вентиляторы. В связи с изоляцией моторного отсека от воздухопритоков системы охлаждения на обоих двигателях был применен специальный обдув выхлопных коллекторов и генератора. ![]() Интерьер боевого отделения. Слева от казенной части пушки установлен телескопический прицел TZF-9a, справа — спаренный пулемет (фото вверху). Вид на установку курсового пулемета (фото внизу). Для ускорения прогрева охлаждающей жидкости в процессе запуска двигателя в холодное время года была предусмотрена возможность установки термостатов с обратным перепуском через закороченный контур. Трансмиссия состояла из карданной передачи, коробки передач со встроенным главным фрикционом, механизма поворота, бортовых передач и дисковых тормозов. Коробка передач Maybach OLVAR OG(B)401216А продукции завода Zahnradfabrik в Фридрихсхафене — безвальная, с продольным расположением осей, восьмиступенчатая, с постоянным зацеплением шестерен, с центральным синхронизатором и индивидуальными тормозами, с полуавтоматическим управлением. ![]() Место наводчика танка «Тигр». На переднем плане — механизм ручного привода поворота башни, над ним — окуляры бинокулярного прицела TZF-9а. |
![Иллюстрация к книге — Танки III Рейха. Том III [i_027.jpg] Иллюстрация к книге — Танки III Рейха. Том III [i_027.jpg]](img/book_covers/077/77526/i_027.jpg)
![Иллюстрация к книге — Танки III Рейха. Том III [i_028.jpg] Иллюстрация к книге — Танки III Рейха. Том III [i_028.jpg]](img/book_covers/077/77526/i_028.jpg)
![Иллюстрация к книге — Танки III Рейха. Том III [i_029.jpg] Иллюстрация к книге — Танки III Рейха. Том III [i_029.jpg]](img/book_covers/077/77526/i_029.jpg)
![Иллюстрация к книге — Танки III Рейха. Том III [i_030.jpg] Иллюстрация к книге — Танки III Рейха. Том III [i_030.jpg]](img/book_covers/077/77526/i_030.jpg)
![Иллюстрация к книге — Танки III Рейха. Том III [i_031.jpg] Иллюстрация к книге — Танки III Рейха. Том III [i_031.jpg]](img/book_covers/077/77526/i_031.jpg)
![Иллюстрация к книге — Танки III Рейха. Том III [i_032.jpg] Иллюстрация к книге — Танки III Рейха. Том III [i_032.jpg]](img/book_covers/077/77526/i_032.jpg)
![Иллюстрация к книге — Танки III Рейха. Том III [i_033.jpg] Иллюстрация к книге — Танки III Рейха. Том III [i_033.jpg]](img/book_covers/077/77526/i_033.jpg)
![Иллюстрация к книге — Танки III Рейха. Том III [i_034.jpg] Иллюстрация к книге — Танки III Рейха. Том III [i_034.jpg]](img/book_covers/077/77526/i_034.jpg)
![Иллюстрация к книге — Танки III Рейха. Том III [i_035.jpg] Иллюстрация к книге — Танки III Рейха. Том III [i_035.jpg]](img/book_covers/077/77526/i_035.jpg)