Книга Танки III Рейха. Том III, страница 46 – Михаил Барятинский

Авторы: А Б В Г Д Е Ж З И Й К Л М Н О П Р С Т У Ф Х Ч Ш Ы Э Ю Я
Книги: А Б В Г Д Е Ж З И Й К Л М Н О П Р С Т У Ф Х Ц Ч Ш Щ Ы Э Ю Я
Бесплатная онлайн библиотека LoveRead.in

Онлайн книга «Танки III Рейха. Том III»

📃 Cтраница 46
Иллюстрация к книге — Танки III Рейха. Том III [i_259.jpg]

«Маус» 205/2 во время испытаний. Лето 1944 года.


ХОДОВАЯ ЧАСТЬ. Все элементы ходовой части размещались между основными бортовыми листами корпуса и фальшбортами. Фальшборт являлся не только броневой защитой ходовой части, но и опорой для крепления узлов и агрегатов гусеничного движителя и подвески.

Каждая гусеница танка состояла из 56 цельных и 56 составных траков, чередовавшихся между собой. Цельный трак представлял собой отливку с гладкой внутренней поверхностью, на которой имелся направляющий гребень. С каждой стороны трака были отлиты семь симметрично расположенных проушин. Составной трак состоял из трех литых частей, крайние из которых были взаимозаменяемы. Траки отливались из марганцовистой стали и подвергались термической обработке — закалке и отпуску.

Соединение траков осуществлялось пальцами, изготовленными из катаной углеродистой стали с последующей поверхностной закалкой токами высокой частоты.

Масса как цельного, так и составного трака с пальцем составляла 127,7 кг. Общая масса гусеницы — 14 302 кг.

Зацепление — цевочное. Ведущие колеса монтировались между двумя ступенями планетарных бортовых редукторов. Корпус ведущего колеса состоял из двух половин, соединенных между собой четырьмя болтами. Зубчатые венцы, по 17 зубьев в каждом, выполнялись съемными и крепились болтами к фланцам корпуса ведущего колеса.

Корпус направляющего колеса представлял собой фасонную отливку, выполненную за одно целое с двумя ободами. Механизм натяжения винтового типа без кривошипного механизма. Масса направляющего колеса в сборе с механизмом натяжения гусеницы составляла 1750 кг.

Корпус танка был подвешен на 12 блоках — по шесть на борт. В каждый блок входили две тележки, расположенные параллельно и повернутые относительно друг друга на 180°. Каждая пара тележек монтировалась на одном кронштейне коробчатого сечения, который крепился с одной стороны к фальшборту, а с другой — к бортовому листу корпуса. Двухрядное расположение тележек было обусловлено стремлением конструкторов увеличить число опорных катков и тем самым уменьшить нагрузку на каждый из них.

Тележка подвески имела два опорных катка, кинематически связанных между собой двумя балансирами. Верхний балансир представлял собой фасонную полую отливку и шарнирно крепился к кронштейну подвески с помощью пальца. К нижнему литому балансиру крепились оба опорных катка. Упругими элементами каждой тележки являлись коническая буферная пружина и резиновая подушка.

Все опорные катки имели одинаковую конструкцию. Внутренняя амортизация опорного катка обеспечивалась двумя резиновыми кольцами, зажатыми между литым ободом Т-образного сечения и двумя стальными дисками. Масса опорного катка составляла 110 кг.

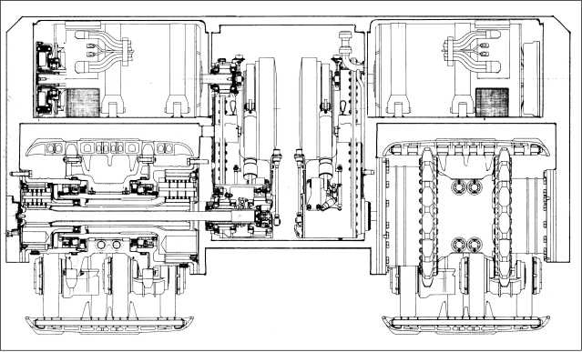
Иллюстрация к книге — Танки III Рейха. Том III [i_260.jpg]

Поперечный разрез по кормовому отсеку трансмиссионного отделения.


ОБОРУДОВАНИЕ ПОДВОДНОГО ВОЖДЕНИЯ. Танк «Маус» был оснащен оборудованием подводного вождения, обеспечивавшем ему преодоление по дну водных преград глубиной до 8 м с продолжительностью пребывания под водой до 45 мин. Судя по всему, немецкие специалисты трезво оценивали способность движения 180-тонного танка по мостам — такую нагрузку не выдержал бы ни один капитальный мост, не говоря уже о наплавных.

Для обеспечения надежной герметичности танка при движении под водой все отверстия и их крышки имели прокладки особой конструкции, способные выдержать давление воды до 1 кГс/см2. Герметичность стыка между маской спаренной установки пушек и башней осуществлялась путем затяжки семи болтов крепления бронировки и резиновой прокладкой, устанавливавшейся по периметру ее внутренней стороны. При отпускании болтов маска возвращалась в исходное положение с помощью двух цилиндрических пружин, надетых на стволы пушек между люлькой и маской.

Герметичность стыка корпуса и башни танка обеспечивалась конструкцией опоры башни. Перед преодолением водной преграды башня при помощи червячных приводов, поднимавших вертикальные тележки, опускалась на погон и за счет своей большой массы плотно прижимала установленную по периметру погона резиновую прокладку, чем и достигалась герметичность стыка.

Металлическая составная воздухопитающая труба устанавливалась на люк механика-водителя и дополнительно крепилась стальными растяжками. Выхлопные газы выбрасывались в воду через установленные на выхлопных трубах обратные клапаны.

ПРОТИВОПОЖАРНОЕ ОБОРУДОВАНИЕ. Силовая установка танка снабжалась автоматической противопожарной системой. Для тушения огня использовался сжатый углекислый газ, хранившийся под давлением 190 атм. в двух баллонах. Всего в баллонах находилось 3000 л газа.

Если температура в силовом отделении превышала 160°, то срабатывала автоматика. Сначала опорожнялся первый баллон, а затем и второй. В случае поломки автоматической системы открыть баллоны можно было вручную. От баллонов газ подавался по стальным трубам диаметром 10 мм к выпускным соплам диаметром 3 мм.

На приборных досках у места механика-водителя и радиста были установлены контрольные лампочки, сигнализировавшие о пожаре в моторном отделении.

* * *

Предлагаемое читателю описание конструкции танка «Маус» в основном составлено по материалам отчета НИБТПолигона ГБТУ ВС «Сверхтяжелый немецкий танк «Maus». В связи с этим будет не лишним привести здесь точку зрения советских специалистов об этой машине. Поскольку отчет касался только конструкции танка (никакие испытания не проводились по причине отсутствия ряда узлов и агрегатов), то и выводы затрагивают только этот аспект. Не лишним будет напомнить также, что стилистика и орфография документа оставлены без изменений.

«Немецкий танк Maus по своему весу и габаритам является первым в мировом танкостроении образцом сверхтяжелого танка и представляет интерес как по самой идее, так и по конструктивному выполнению основных узлов и агрегатов.

К характерным особенностям танка Maus относятся:

I. По компоновке и общему устройству.

1. Компоновка танка отличается от обычно принятой на современных образцах, главным образом расположением силовой установки.

Двигатель расположен за отделением управления в общем колодце с блоком генераторов. Такое размещение силовой установки стеснило доступ к основным агрегатам ее, усложнило монтажно-демонтажные работы и привело к смещению боевого отделения ближе к кормовой части танка.

Другие отделения танка расположены по общепринятой схеме для танков с задним расположением трансмиссии.

2. Объемы отделений управления, боевого и трансмиссионного обеспечивают удобство работы экипажа и необходимый доступ к агрегатам, расположенным внутри корпуса.

Иллюстрация к книге — Танки III Рейха. Том III [i_261.jpg]

Оба опытных образца на хранении в Куммерсдорфе. 1945 год.

Вход
Поиск по сайту
Ищем:
Календарь