Онлайн книга «Отечественные колесные бронетранспортеры БТР-60, БТР-70, БТР-80»
|
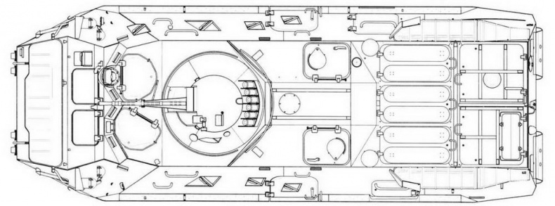
После пожара на заводе двигателей КамАЗа в апреле 1993 года была разработана установка на бронетранспортер дизеля ЯМЗ-238М2 мощностью 240 л.с., что почти не сказалось на подвижности машины. На машинах ранних выпусков устанавливались радиостанции Р-123М и ТПУ Р-124, в дальнейшем замененные на Р-163-50У и Р-174. В 1994 году был принят на вооружение бронетранспортер БТР-80А (ГАЗ-59029). Работы по созданию этой машины велись АО ГАЗ под руководством А.Масягина. Основное отличие новой модификации от БТР-80 — башенная пушечно-пулеметная установка, предназначенная для борьбы с наземными и низколетящими воздушными целями. В установке размещены 30-мм автоматическая пушка 2А72 и спаренный с ней пулемет ПКТ. Вертикальные углы наведения от -5° до +70°. Боекомплект — 300 снарядов и 2000 патронов. Все вооружение размещено на лафете, вынесенном за пределы обитаемого отделения, что уменьшает его загазованность при стрельбе. На БТР-80А установлены дневной прицел 1ПЗ-9 и танковый ночной прицел ТПН-3-42 «Кристалл», позволяющий в ночных условиях поражать цели на дальности до 900 м. Боевая масса машины возросла до 14,5 т. Одновременно с БТР-80А был разработан БТР-80С — вариант для внутренних войск. Вместо 30-мм пушки на нем установлен крупнокалиберный пулемет КПВТ. Правда, в связи с отсутствием фотографий этой боевой машины, трудно сказать, производится ли она серийно. С 1990 года в войска поступает самоходное артиллерийское орудие (САО) 2С23 «Нона-СВК». ![]() БТР-80 1985 г. ![]() ![]() Вид снизу ![]() Вид спереди ![]() Вид сзади ![]() БТР-80, вид с кормы. Заслонка водометного движителя открыта. Хорошо видны рули управления машиной на плаву ![]() Бронетранспортер БТР-80А В качестве базы при его создании использовано шасси БТР-80. 120-мм нарезное орудие 2А60 установлено в конической сварной башне, выполненной из алюминиевого сплава. Угол горизонтального наведения составляет 70° (по 35° на сторону). Вертикальное наведение возможно в пределах от -4° до +80°. Максимальная скорострельность — 10 выстр./мин. Стрельба из САО может вестись только с места как с закрытых огневых позиций, так и прямой наводкой 120-мм выстрелами с осколочно-фугасными снарядами и 120-мм выстрелами с осколочно-фугасными, осветительными, дымовыми и зажигательными минами. Максимальная дальность стрельбы осколочно-фугасным снарядом ЗВОФ54 — 8700 м, осколочно-фугасной миной — 7100 м. Башня оборудована командирской башенкой, на крыше которой установлен пулемет ПКТ, предназначенный для самообороны. Пулемет соединен тягой с прибором ТКН-ЗА, что позволяет вести прицельную стрельбу, управляя огнем из башенки. Машина оборудована системой постановки дымовых завес 902В «Туча». Что касается других модификаций БТР-80, то в первую очередь стоит упомянуть командирский бронетранспортер БТР-80К, предназначенный для командира мотострелкового батальона. Для работы офицеров оборудовано три рабочих места. На машине установлены две радиостанции Р-163-50У, 11-м телескопическая мачта, навигационная аппаратура ТНА-4-6 с индикаторным планшетом, две выносные УКВ-радиостанции Р-159. ![]() Самоходное артиллерийское орудие 2С23 «Нона-СВК». Нижний Тагил, выставка «УРАЛ ЭКСПО АРМС 2000» ![]() «Нона-СВК». Ствол 120-мм орудия 2А60 поднят на максимальный угол возвышения. Омск, выставка ВТТВ-Омск-2003 Заслуживает упоминания бронированная медицинская машина БММ-80 (ГАЗ-59039) «Симфония». Кроме экипажа в ней возможна перевозка 7 раненых в медицинском отделении и 2 — на крыше на носилках. В зависимости от состава медицинского и санитарно-хозяйственного имущества, БММ может использоваться для эвакуации раненых с поля боя (БММ-1), как медпункт батальона (БММ-2) и подвижная перевязочная с врачебной бригадой и комплексом автоперевязочной АП-2 (БММ-3). Кроме того, на шасси БТР-80 созданы командно-штабная машина БТР80КШ (ГАЗ-59032), бронированная ремонтно-эвакуационная машина БРЭМ-К (ГАЗ-59033), машина радиационной и химической разведки РХМ-4 (РХМ-4-01), унифицированное шасси К1Ш1, коротковолновая радиостанция оперативно-тактического звена управления Р-165Б, подвижные пункты управления ПУ-12М6 и ПУ-12М7 батареи ЗРК, подвижной командно-наблюдательный пункт ПКНП «Кушетка-Б», станция спутниковой связи и звуковещательная станция. Бронетранспортеры БТР-80 начали поступать на вооружение мотострелковых частей Советской Армии, морской пехоты ВМФ, пограничных и внутренних войск в середине 1980-х годов. Впервые на военном параде в Москве они были показаны 7 ноября 1987 года. ![]() Бронированная ремонтно-эвакуационная машина БРЭМ-К. Выставка МВСВ-2006, Москва, ВВЦ ![]() БРЭМ-К на учениях. Кран-стрела в развернутом положении |
![Иллюстрация к книге — Отечественные колесные бронетранспортеры БТР-60, БТР-70, БТР-80 [img_102.jpg] Иллюстрация к книге — Отечественные колесные бронетранспортеры БТР-60, БТР-70, БТР-80 [img_102.jpg]](img/book_covers/077/77234/img_102.jpg)
![Иллюстрация к книге — Отечественные колесные бронетранспортеры БТР-60, БТР-70, БТР-80 [img_103.jpg] Иллюстрация к книге — Отечественные колесные бронетранспортеры БТР-60, БТР-70, БТР-80 [img_103.jpg]](img/book_covers/077/77234/img_103.jpg)
![Иллюстрация к книге — Отечественные колесные бронетранспортеры БТР-60, БТР-70, БТР-80 [img_104.jpg] Иллюстрация к книге — Отечественные колесные бронетранспортеры БТР-60, БТР-70, БТР-80 [img_104.jpg]](img/book_covers/077/77234/img_104.jpg)
![Иллюстрация к книге — Отечественные колесные бронетранспортеры БТР-60, БТР-70, БТР-80 [img_105.jpg] Иллюстрация к книге — Отечественные колесные бронетранспортеры БТР-60, БТР-70, БТР-80 [img_105.jpg]](img/book_covers/077/77234/img_105.jpg)
![Иллюстрация к книге — Отечественные колесные бронетранспортеры БТР-60, БТР-70, БТР-80 [img_106.jpg] Иллюстрация к книге — Отечественные колесные бронетранспортеры БТР-60, БТР-70, БТР-80 [img_106.jpg]](img/book_covers/077/77234/img_106.jpg)
![Иллюстрация к книге — Отечественные колесные бронетранспортеры БТР-60, БТР-70, БТР-80 [img_107.jpg] Иллюстрация к книге — Отечественные колесные бронетранспортеры БТР-60, БТР-70, БТР-80 [img_107.jpg]](img/book_covers/077/77234/img_107.jpg)
![Иллюстрация к книге — Отечественные колесные бронетранспортеры БТР-60, БТР-70, БТР-80 [img_108.jpg] Иллюстрация к книге — Отечественные колесные бронетранспортеры БТР-60, БТР-70, БТР-80 [img_108.jpg]](img/book_covers/077/77234/img_108.jpg)
![Иллюстрация к книге — Отечественные колесные бронетранспортеры БТР-60, БТР-70, БТР-80 [img_109.jpg] Иллюстрация к книге — Отечественные колесные бронетранспортеры БТР-60, БТР-70, БТР-80 [img_109.jpg]](img/book_covers/077/77234/img_109.jpg)
![Иллюстрация к книге — Отечественные колесные бронетранспортеры БТР-60, БТР-70, БТР-80 [img_110.jpg] Иллюстрация к книге — Отечественные колесные бронетранспортеры БТР-60, БТР-70, БТР-80 [img_110.jpg]](img/book_covers/077/77234/img_110.jpg)
![Иллюстрация к книге — Отечественные колесные бронетранспортеры БТР-60, БТР-70, БТР-80 [img_111.jpg] Иллюстрация к книге — Отечественные колесные бронетранспортеры БТР-60, БТР-70, БТР-80 [img_111.jpg]](img/book_covers/077/77234/img_111.jpg)
![Иллюстрация к книге — Отечественные колесные бронетранспортеры БТР-60, БТР-70, БТР-80 [img_112.jpg] Иллюстрация к книге — Отечественные колесные бронетранспортеры БТР-60, БТР-70, БТР-80 [img_112.jpg]](img/book_covers/077/77234/img_112.jpg)