Онлайн книга «Трофейные танки Красной Армии»
|
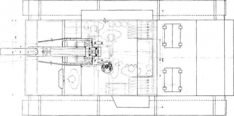
Гильзы с зарядами устанавливались на полу боевого отделения в специальные пазы, и фиксировались закраинами своих фланцев. От выпадения они удерживались специальной пластинчатой пружиной, которая утапливалась вниз при выдвижении гильзы из паза. В походном положении гильзы дополнительно закреплялись ремнями с пряжками. Отмечалось, что размещение боезапаса в самоходке удобное, что «способствует повышению скорострельности». Для облегчения заряжания гаубицы на цапфенной обойме закрепили специальные лотки для досылки снарядов. ![]() Эскизные проработки самоходной гаубицы СГ-122, вид в плане. Апрель 1942 года (копия заводского чертежа). Экипаж СГ-122 состоял из пяти человек: механика-водителя, командира, он же наводчик по горизонтали (располагался за механиком-водителем левым боком вперед), позади него так же боком по ходу машины располагался первый заряжающий, напротив командира правым плечом по ходу машины располагался наводчик по вертикали (гаубица М-30 имела раздельную наводку), а за ним также правым плечом вперед стоял второй заряжающий. Для входа-выхода экипажа в машине имелось два люка. Основной размешался в корме рубки, а резервный находился перед наводчиком по вертикали. Для того, чтобы защитить экипаж от пороховых газов при интенсивной стрельбе использовались противогазные маски, «соединенные шлангами двойной длины с забортным свежим воздухом, минуя противогазные коробки (к которым шланги присоединяются только в момент химтревоги». Если огонь велся с закрытых позиций, для вентиляции использовались открытые люки. В установке имелось место для монтажа радиостанции 9-Р «Тапир» и ТПУ-4бис. Обязанности радиста должен был выполнять «малозагруженный номер расчета — вертикальный наводчик». Отмечалось, что перевооружение «артштурмов» может быть осуществлено на заводе «при подготовленных деталях и нарезанной броне (из трофейных или разбитых танков) в течение 10–12 дней». По первоначальным прикидкам перевооружение не должно было требовать большой затраты станко-часов, так как «все детали простые и в большинстве выполняются огнерезкой и электросваркой». В период с 20 по 30 июня 1942 года опытный образец СГ-122 прошел заводские испытания (на полигоне завода № 8 под Москвой). На них проверялись общая прочность конструкции и отдельных её узлов, удобство обслуживания самоходки, а также скорострельность, устойчивость при стрельбе и ходовые качества. В ходе испытаний выяснилось, что время перехода самоходки из походного положения в боевое составляет от 19 до 27с, а время переноса огня по азимуту на углы 15, 45 и 90 градусов, разворотом машины на месте с грубым наведением орудия на новую цель при помощи визира с последующей точной наводкой по панораме и производством выстрела — от 16 до 22 с. Проверка удобства работы орудийного расчета в противогазах при сильном задымлении боевого отделения показала, что это заметно не снижает работоспособности орудийного расчета. Задымление осуществлялось сжиганием в течение 15 минут в трех пустых гильзах, установленных на полу боевого отделения, промасленной ветоши «с накоплением дыма периодическим задраиванием люков». В это время экипаж находился в противогазах, соединенных удлиненными шлангами с наружным воздухом и «производил боевые действия при гаубице». Испытания пробегом составили 75 километров по различным дорогам и бездорожью, и показали «удовлетворительные ходовые свойства шасси, его хорошие управляемость и проходимость через препятствия». ![]() Опытный образец самоходной гаубицы СГ-122 во время заводских испытаний. Июнь 1942 года (ЦАМО). В заключение отчёта говорилось, что самоходная установка СГ-122 выдержала заводские испытания и подлежит передаче на полигонные испытания. Следует сказать, что руководство ГАБТУ КА отнеслось к испытаниям и перспективам серийного изготовления СГ-122 весьма прохладно. Например, на письме, направленном 2 июля 1942 года председателем арткома ГАУ Хохловым заместителю начальника ГАБТУ КА генерал-майору Лебедеву с просьбой о проведении ходовых испытаний СГ-122 на полигоне в Кубинке, последний написал следующую резолюцию: «Это совершенно несерьезная затея „игра в испытания“. „Артштурмов“ у нас нет. из ремонта их не выпускают. Если починили 2–3 штуки, то необходимо их, не мешкая, направлять на фронт, как мы это делаем с трофейными танками, которых отремонтировали гораздо больше, чем „артштурмов“». Спустя несколько дней. 11 июля, Лебедев направил Хохлову письмо, в котором писал: «В связи с тем, что количество имеющихся трофейных немецких машин „Артштурм“, пригодных для дальнейшей эксплуатации (после ремонта) исчисляется единицами, считаю установку на них 122-мм гаубицы обр. 1938 г. и испытание опытного образца такой установки, нецелесообразным». Тем не менее, полигонные испытания опытного образца СГ-122 по инициативе ГАУ КА прошли с 25 июля по 16 августа 1942 года на Софринском артиллерийском полигоне в объеме 234 выстрела и 50 километров пробега. В целом отмечалось, что кучность и скорострельность (при малых углах возвышения — 11–12 выстрелов в минуту, при больших — 5 выстрелов в минуту) у СГ-122 вполне удовлетворительные и практически соответствующие таковым для 122-мм полевой гаубицы М-30. В процессе ходовых испытаний отмечался недостаточный обзор с места механика-водителя (особенно вправо по ходу) и трудность вождения самоходки по пересеченной местности из-за смешения центра тяжести машины вперёд. При изготовлении новых образцов СГ-122 комиссия, испытывавшая опытный образец, рекомендовала смонтировать откидные сиденья для экипажа и установить защиту панорамы гаубицы (в виде секторного броневого колпака). ![]() Бронекожух защиты гаубицы М-30 серийного варианта СГ-122 (копия заводского чертежа (МС). Несмотря на нежелание (в общем-то обоснованное) ГАБТУ КА заниматься СГ-122, руководство ГАУ КА и наркомата вооружения сумело «пробить» свою машину на самом верху. В результате, 19 октября 1942 года И. Сталин подписал постановление Государственного Комитета Обороны, которым предусматривалось изготовить 120 самоходок СГ-122 на «базе трофейных танков Т-3, Т-4 и „Артштурм“» и формировании из них десяти артдивизионов. Этим же постановлением утверждался график подачи ремонтных машин на завод № 592 со стороны ГАБТУ КА: Октябрь — 20 штук; К 15 ноября — 10 штук; К 1 декабря — 20 штук; К 15 декабря — 20 штук; К 1 января 1943 года — 25 штук; Итого до конца года — 95 штук. |
![Иллюстрация к книге — Трофейные танки Красной Армии [i_078.jpg] Иллюстрация к книге — Трофейные танки Красной Армии [i_078.jpg]](img/book_covers/074/74609/i_078.jpg)
![Иллюстрация к книге — Трофейные танки Красной Армии [i_079.jpg] Иллюстрация к книге — Трофейные танки Красной Армии [i_079.jpg]](img/book_covers/074/74609/i_079.jpg)
![Иллюстрация к книге — Трофейные танки Красной Армии [i_080.jpg] Иллюстрация к книге — Трофейные танки Красной Армии [i_080.jpg]](img/book_covers/074/74609/i_080.jpg)