Онлайн книга «Германские субмарины Тип XXI Крупным планом»
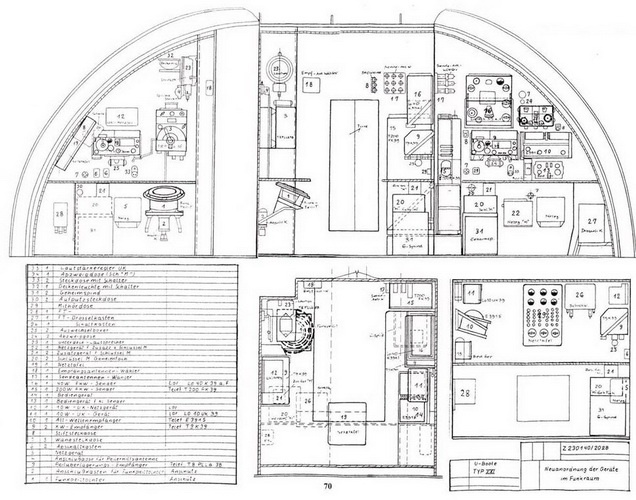
![]() Секция № I лодки XXI серии, руль не установлен. На заднем плане – секция № 3. ![]() Торпедные аппараты субмарины U-2518, лодку уже принял французский экипаж. ![]() Вид спереди на 7-й отсек, стеллажи для торпед. Данная секции была изготовлена предприятием Зеебек из Везермюнде. ![]() Стеллажи для торпед на субмарине U-2518. Торпеды подавались в торпедные аппараты посредством электроприводов. На заднем плане – крышки торпедных аппаратов. ![]() Радиоотсек на подлодке 21-го типа. ![]() Пост управления, расположенный в передней части субмарины «Вильгельм Бауэр». На снимке – органы рулевого управления, репитер компаса, два машинных телеграфа, индикатор положения руля. Слева – тревожная кнопка, справа – трап па мостик. ![]() Перископ подводной лодки «Вильгельм Бауэр». ![]() По левому борту в передней части центрального поста установлено два насоса гидравлической системы. Маховики перед ними предназначены для управлении подачей воздуха от компрессоров в пневмосистему. Внизу слева – ручной насос, справа – фильтр. В левой части снимка – эхолот фирмы Атлас. ![]() Пост управления рулем субмарины «Вильгельм Бауэр». Выше по бокам органа управления рулем установлены машинные телеграфы, между ними – репитер компаса. Руль, как и рули глубины, снабжен автоматической системой стабилизации фирмы Аншютц. В подволоке торчат маховики выхлопной системы дизелей. ![]() Труба шнорхеля расположена в кормовой чисти центрального пости лодки XXI серии. Слева – панель контроля и управления работой вспомогательных механизмов. Выше – клапан дренажной системы шнорхеля. ![]() Передняя часть насосного отсека подводной лодки XXI серии, слева вверху – вентилятор, на заднем плане насос продувки балластных цистерн № 2. ![]() Левый борт с паутиной трубопроводов и насосами, в правой части кадра – трап, ведущий в центральный пост. ![]() Электрический воздушный компрессор № 3 установлен в левой части отсека вспомогательных механизмов, субмарина «Вильгельм Бауэр». Это – оригинальная вещь, компрессор НК 1,5, изготовленный Круппом в 1944 г. Компрессор создает давление в 200 атмосфер – работать с аэрографом не рекомендуется! Производительность компрессора – 16 литров в минуту. ![]() Вид из кормы на 4-й отсек. Вверху – кубрик, ниже – аккумуляторная яма. Яма связан с кубриком люком-лазом. ![]() Левый борт жилого отсека подводной лодки «Вильгельм Бауэр». Жилой отсек на «Вильгельме Бауэре» был несколько больше, чем на стандартной субмарине XXI серии. ![]() Установки правого дизеля MAN M6V 40/46 в секцию № 3 подводной лодки XXI серии, верфь АГ Везер. Выше дизеля смонтированы трубопроводы выхлопной системы. ![]() Правый вентилятор с воздуховодами. Ниже – органы управления и контроля работы дизеля. Справа – приборы контроля и клапаны топливной системы. ![]() Правая панель пульта управления электродвигателями субмарины «Вильгельм Бауэр». ![]() ![]() Задняя часть дизельного отсека субмарины U- 2518. Слева – вентилятор дизеля правого борта, за ним – компрессор. Лодка U-2518 стаза единственной субмариной XXI из числа захваченных англичанами, на которой стояли дизели с турбонаддувом. Трубы под компрессором – система воздушного охлаждения. |
![Иллюстрация к книге — Германские субмарины Тип XXI Крупным планом [pic_89.jpg] Иллюстрация к книге — Германские субмарины Тип XXI Крупным планом [pic_89.jpg]](img/book_covers/073/73823/pic_89.jpg)
![Иллюстрация к книге — Германские субмарины Тип XXI Крупным планом [pic_90.jpg] Иллюстрация к книге — Германские субмарины Тип XXI Крупным планом [pic_90.jpg]](img/book_covers/073/73823/pic_90.jpg)
![Иллюстрация к книге — Германские субмарины Тип XXI Крупным планом [pic_91.jpg] Иллюстрация к книге — Германские субмарины Тип XXI Крупным планом [pic_91.jpg]](img/book_covers/073/73823/pic_91.jpg)
![Иллюстрация к книге — Германские субмарины Тип XXI Крупным планом [pic_92.jpg] Иллюстрация к книге — Германские субмарины Тип XXI Крупным планом [pic_92.jpg]](img/book_covers/073/73823/pic_92.jpg)
![Иллюстрация к книге — Германские субмарины Тип XXI Крупным планом [pic_93.jpg] Иллюстрация к книге — Германские субмарины Тип XXI Крупным планом [pic_93.jpg]](img/book_covers/073/73823/pic_93.jpg)
![Иллюстрация к книге — Германские субмарины Тип XXI Крупным планом [pic_94.jpg] Иллюстрация к книге — Германские субмарины Тип XXI Крупным планом [pic_94.jpg]](img/book_covers/073/73823/pic_94.jpg)
![Иллюстрация к книге — Германские субмарины Тип XXI Крупным планом [pic_95.jpg] Иллюстрация к книге — Германские субмарины Тип XXI Крупным планом [pic_95.jpg]](img/book_covers/073/73823/pic_95.jpg)
![Иллюстрация к книге — Германские субмарины Тип XXI Крупным планом [pic_96.jpg] Иллюстрация к книге — Германские субмарины Тип XXI Крупным планом [pic_96.jpg]](img/book_covers/073/73823/pic_96.jpg)
![Иллюстрация к книге — Германские субмарины Тип XXI Крупным планом [pic_97.jpg] Иллюстрация к книге — Германские субмарины Тип XXI Крупным планом [pic_97.jpg]](img/book_covers/073/73823/pic_97.jpg)
![Иллюстрация к книге — Германские субмарины Тип XXI Крупным планом [pic_98.jpg] Иллюстрация к книге — Германские субмарины Тип XXI Крупным планом [pic_98.jpg]](img/book_covers/073/73823/pic_98.jpg)
![Иллюстрация к книге — Германские субмарины Тип XXI Крупным планом [pic_99.jpg] Иллюстрация к книге — Германские субмарины Тип XXI Крупным планом [pic_99.jpg]](img/book_covers/073/73823/pic_99.jpg)
![Иллюстрация к книге — Германские субмарины Тип XXI Крупным планом [pic_100.jpg] Иллюстрация к книге — Германские субмарины Тип XXI Крупным планом [pic_100.jpg]](img/book_covers/073/73823/pic_100.jpg)
![Иллюстрация к книге — Германские субмарины Тип XXI Крупным планом [pic_101.jpg] Иллюстрация к книге — Германские субмарины Тип XXI Крупным планом [pic_101.jpg]](img/book_covers/073/73823/pic_101.jpg)
![Иллюстрация к книге — Германские субмарины Тип XXI Крупным планом [pic_102.jpg] Иллюстрация к книге — Германские субмарины Тип XXI Крупным планом [pic_102.jpg]](img/book_covers/073/73823/pic_102.jpg)
![Иллюстрация к книге — Германские субмарины Тип XXI Крупным планом [pic_103.jpg] Иллюстрация к книге — Германские субмарины Тип XXI Крупным планом [pic_103.jpg]](img/book_covers/073/73823/pic_103.jpg)
![Иллюстрация к книге — Германские субмарины Тип XXI Крупным планом [pic_104.jpg] Иллюстрация к книге — Германские субмарины Тип XXI Крупным планом [pic_104.jpg]](img/book_covers/073/73823/pic_104.jpg)
![Иллюстрация к книге — Германские субмарины Тип XXI Крупным планом [pic_105.jpg] Иллюстрация к книге — Германские субмарины Тип XXI Крупным планом [pic_105.jpg]](img/book_covers/073/73823/pic_105.jpg)
![Иллюстрация к книге — Германские субмарины Тип XXI Крупным планом [pic_106.jpg] Иллюстрация к книге — Германские субмарины Тип XXI Крупным планом [pic_106.jpg]](img/book_covers/073/73823/pic_106.jpg)
![Иллюстрация к книге — Германские субмарины Тип XXI Крупным планом [pic_107.jpg] Иллюстрация к книге — Германские субмарины Тип XXI Крупным планом [pic_107.jpg]](img/book_covers/073/73823/pic_107.jpg)
![Иллюстрация к книге — Германские субмарины Тип XXI Крупным планом [pic_108.jpg] Иллюстрация к книге — Германские субмарины Тип XXI Крупным планом [pic_108.jpg]](img/book_covers/073/73823/pic_108.jpg)