Книга Сантехнические работы своими руками. Уроки домашнего мастера, страница 29 – Евгений Симонов

Авторы: А Б В Г Д Е Ж З И Й К Л М Н О П Р С Т У Ф Х Ч Ш Ы Э Ю Я
Книги: А Б В Г Д Е Ж З И Й К Л М Н О П Р С Т У Ф Х Ц Ч Ш Щ Ы Э Ю Я
Бесплатная онлайн библиотека LoveRead.in

Онлайн книга «Сантехнические работы своими руками. Уроки домашнего мастера»

📃 Cтраница 29

В некоторых случаях имеет смысл поставить несколько водонагревателей в разных водозаборных точках, тогда расчет емкости проводится для каждой из точек.

Важно знать, что мощность водонагревателя напрямую зависит от времени, которое требуется для нагрева воды в баке. Для нас это важно: представьте себе, что вечером вся семья будет пользоваться горячей водой, соответственно, вода в баке должна будет успеть нагреться несколько раз за вечер. А если мощность невелика, то этот процесс затянется ой как надолго.

Следует уделить немалое внимание безопасности водонагревателя. Класс электрической безопасности IP указан на маркировке и обозначается двумя цифрами.

Первая цифра — защита от инородных тел:

• 1 — крупные инородные тела (размером с руку);

• 2 — средние инородные тела (размером с палец);

• 4 — мелкие инородные тела (более 1 мм);

• 5 — высшая степень защиты, в том числе от пыли.

Вторая цифра — защита от воды:

• 0 — защита от воды отсутствует;

• 1 — защита от падающих сверху водяных капель;

• 3 — защита от дождя, брызги под углом 60°;

• 4 — защита от брызг в любом направлении;

• 5 — защита от водяной струи.

Обычно на рынке предлагаются модели с IP24 и IP25. Нагреватель для ванной комнаты лучше выбирать с IP25.

Перед установкой сего приспособления нужно изучить инструкцию, а также знать, как устроен нагреватель в принципе.

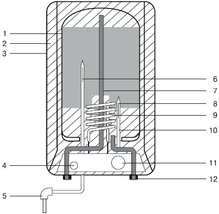
Иллюстрация к книге — Сантехнические работы своими руками. Уроки домашнего мастера [i_092.jpg]

Устройство накопительного водонагревателя: 1 — внутренняя емкость; 2 — теплоизолирующий наполнитель; 3 — корпус; 4 — контрольный датчик — лампочка; 5 — кабель; 6 — температурный датчик; 7 — труба вывода горячей воды; 8 — предохранительный элемент; 9 — нагревательный элемент — ТЭН; 10 — потокогаситель; 11 — регулятор температуры; 12 — труба для забора холодной воды


Основной действующий элемент нагревателя — ТЭН. Он нагревает воду до установленной пользователем аппарата температуры, затем отключается. После того как вода остывает на 0,5 °C, он включается вновь.

Начинаем установку.

Место установки нагревателя должно соответствовать его характеристике по электробезопасности IP. Так, если сказано, что прибор не рассчитан на попадание струй воды, значит, нужно его расположить как можно дальше от места, где это может произойти, в частности от ванны.

Розетки для подключения к электричеству тоже должны быть расположены в местах, куда вода гарантированно не попадет. Сам водонагреватель нужно располагать на расстоянии не менее 1 м от розетки и других электроприборов.

Желательно установить водонагреватель максимально близко к месту забора горячей воды, тогда вода будет медленнее остывать, соответственно, производительность устройства будет лучшей.

Для установки накопительного нагревателя придется купить крюки в магазине самостоятельно, в комплект они почему-то не входят. Вертикальный нагреватель устанавливают на двух крюках на расстоянии примерно 18 см друг от друга. Горизонтальный бак устанавливают на четырех крюках, их расположение зависит от расположения кронштейнов на корпусе. Высоту подвеса регулируем по желанию. Но помним, что нам нужно будет периодически подлазить к баку. Для этого расстояние от съемной крышечки (на схеме конкретной модели показано, где она находится) до ближайшей поверхности в направлении съема крышки должно быть не менее 30 см. если наш нагреватель имеет объем менее 100 л, и 50 см — если 100 л и более. Если вы устанавливаете нагреватель объемом более 100 л. вам потребуются специальные кронштейны, выдерживающие такую нагрузку.

Иллюстрация к книге — Сантехнические работы своими руками. Уроки домашнего мастера [i_093.jpg]

Кронштейны


В городских квартирах установка нагревателей объемом более 15 л возможна только на капитальные стены. Это связано с тем. что наши дома строятся лишь бы как, особенно внутренние перегородки, иногда даже поражаешься, как эти стены еще не развалились. Но не будем о грустном.

Под накопителем желательно установить емкость с подводом к канализации на случай протечек, тогда будете спать спокойно, не заботясь о том, что можете залить соседей. Если в помещении выполнена гидроизоляция полов, то можно этого не делать.


Основные правила безопасности при подключении и эксплуатации

Давление воды в водопроводе не должно превышать предельных значений, указанных в инструкции к вашей модели. Если это случается, необходимо установить редуктор давления.

При подключении электронагревателя к водопроводу применяют предохранительный клапан. При отключении воды клапан предотвращает возврат воды в водопровод, выравнивает давление воды и в случае избыточного давления сливает воду через дренаж. Подключение нагревателя без предохранительного клапана может быть чревато неприятными последствиями типа взрыва.

Перед тем как проводить любые работы с нагревателем, необходимо отключить его от источника питания.

Подключать к источнику питания можно только наполненный нагреватель, иначе он может попросту сгореть.

Пользуйтесь только оригинальными запчастями и устройствами, рекомендуемыми производителем.

Вода, получаемая в нагревателе, непригодна в пищу.


Подключение к водопроводу

В первую очередь перекроем доступ воды к нагревателю, закрыв вентиль подачи воды из водопровода.

Чаще всего вода подводится к нагревателю по гибкому шлангу. Можно применить металлопластик, он более надежен и долговечен. Иногда, если есть риск превышения давления, ставят обычные трубы из нержавеющей стали. Стоит заметить, что гибкая подводка обладает изолирующими свойствами, тогда как металлопластик является проводником.

Для подключения нам потребуются трубы, фитинги, герметик и некоторые другие приспособления, о которых скажем чуть позже. Фитингами называют детали, используемые в сантехнических соединениях для поворота, изгиба, разветвления или перехода на другой диаметр. В сантехнике основным параметром являются диаметры. Зная один диаметр, например внешний, вы без труда можете высчитать внутренний. Диаметры труб измеряются в дюймах. Для стыковки двух труб нужно, чтобы внутренний диаметр одной трубы совпадал с внешним диаметром другой, аналогично внутренняя резьба одной трубы будет внешней резьбой для другой. Если диаметры или резьбы не совпадают, тогда на помощь приходят фитинги, проще говоря, переходники. При соединении железной водопроводной трубы с гибкой подводкой или металлопластиковыми трубками нам тоже понадобятся фитинги. Герметик нам обязательно потребуется для защиты от протекания всех соединений.

Вход
Поиск по сайту
Ищем:
Календарь