Книга Строительство дома быстро и дешево, страница 14 – Евгений Симонов

Авторы: А Б В Г Д Е Ж З И Й К Л М Н О П Р С Т У Ф Х Ч Ш Ы Э Ю Я
Книги: А Б В Г Д Е Ж З И Й К Л М Н О П Р С Т У Ф Х Ц Ч Ш Щ Ы Э Ю Я
Бесплатная онлайн библиотека LoveRead.in

Онлайн книга «Строительство дома быстро и дешево»

📃 Cтраница 14

Лоджия — огражденное с трех сторон помещение, открытое во внешнее пространство. Лоджии защищены от ветра, снега, дождя, пыли, обеспечивают лучшую изоляцию и безопасность. При желании можно устроить отапливаемую лоджию.

ПРИМЕЧАНИЕ

Сооружение лоджии, у которой остеклена только передняя часть, обходится дешевле, чем если остекляются три стороны. Кроме того, частичное остекление обеспечивает лучшую защиту от ветра и низких температур.

Терраса — открытая пристройка к дому, площадка для отдыха, имеющая крышу. Она может размещаться как на земле, на уровне первого этажа, так и на уровнях других этажей.

Веранда — обычно полностью остекленное неотапливаемое помещение, пристроенное к дому или встроенное в него.

Тем, кто занимается консервированием овощей и фруктов, не помешает летняя кухня. Так называется либо неотапливаемая пристройка к дому, либо отдельное неотапливаемое сооружение, оборудованное плитой и используемое в жаркое время года.

Глава 3
Разработка, согласование, утверждение проектной документации

Вы приобрели участок, получили разрешение на строительство жилого дома и подготовили проект. Теперь можно приступать к строительству? Не торопитесь. Как бы в результате поспешных действий не пришлось сносить уже готовое здание.

Для начала ознакомьтесь со ст. 222 Гражданского кодекса РФ, которая гласит следующее.

«1. Самовольной постройкой является жилой дом, другое строение, сооружение или иное недвижимое имущество, созданное на земельном участке, не отведенном для этих целей в порядке, установленном законом и иными правовыми актами, либо созданное без получения на это необходимых разрешений или с существенным нарушением градостроительных и строительных норм и правил.

2. Лицо, осуществившее самовольную постройку, не приобретает на нее право собственности. Оно не вправе распоряжаться постройкой — продавать, дарить, сдавать в аренду, совершать другие сделки.

Самовольная постройка подлежит сносу осуществившим ее лицом либо за его счет, кроме случаев, предусмотренных пунктом 3 настоящей статьи.

3. Право собственности на самовольную постройку может быть признано судом, а в предусмотренных законом случаях в ином установленном законом порядке, за лицом, в собственности, пожизненном наследуемом владении, постоянном (бессрочном) пользовании которого находится земельный участок, где осуществлена постройка. В этом случае лицо, за которым признано право собственности на постройку, возмещает осуществившему ее лицу расходы на постройку в размере, определенном судом.

Право собственности на самовольную постройку не может быть признано за указанным лицом, если сохранение постройки нарушает права и охраняемые законом интересы других лиц либо создает угрозу жизни и здоровью граждан».

Итак, если вы собственник земельного участка, то имеете право строить на нем здания и сооружения, перестраивать и реконструировать их, а также сносить. Необходимо лишь соблюдать градостроительные и строительные нормы и правила, а также использовать земельный участок по назначению (рис. 3.1).

Иллюстрация к книге — Строительство дома быстро и дешево [_057.jpg]

Рис. 3.1. Прежде чем браться за работу, необходимо составить детальный проект будущего дома


Состав проектной документации

Полный рабочий проект дома должен представлять собой альбом формата Аз объемом 30–150 страниц в зависимости от размеров будущего объекта и сложности конструкций. Рабочий проект дома состоит из нескольких обязательных разделов:

♠ архитектурно-строительного;

♠ конструкционного;

♠ инженерного.

При этом первые два раздела иногда объединяют в один (он также называется архитектурно-строительным), который включает:

♠ описательную часть, в которой приводятся функциональные решения, параметры поверхности застройки, полезная площадь, общая поверхность, нетто-поверхность, кубатура;

♠ фасады дома — здесь отражается вид дома с разных сторон;

♠ технологические решения и расчет расхода материалов;

♠ спецификацию — описание материалов, которые будут использоваться при строительстве и обустройстве (отделке) дома; в спецификации также приводится ассортиментный перечень и необходимое количество каждого материала;

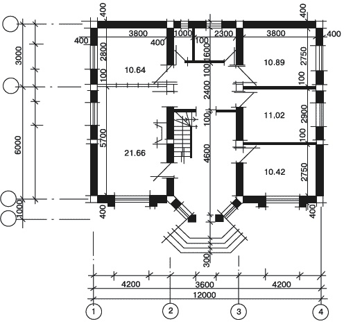
♠ поэтажные планы дома, иллюстрирующие расположение всех помещений, их размеры, а также размещение стен, перегородок, оконных и дверных проемов (рис 3.2 и 3.3);

Иллюстрация к книге — Строительство дома быстро и дешево [_058.jpg]

Рис. 3.2. План первого этажа

Иллюстрация к книге — Строительство дома быстро и дешево [_059.jpg]

Рис. 3.3. План мансарды


♠ план стропильной системы крыши, в котором описываются размещение и размеры всех конструкционных элементов крыши;

♠ план крыши, который должен учитывать ее форму, размеры и углы наклона скатов;

♠ основные разрезы — здесь должны отражаться все элементы здания после его пересечения вдоль или поперек от крыши к фундаментам;

♠ чертежи окон и дверей с указанием их размеров и спецификации используемых материалов;

♠ план фундамента с указанием точного размещения, глубины заложения, используемых материалов;

♠ раскладку плит перекрытия, включающую спецификацию используемых материалов.

При обособлении архитектурно-строительного и конструкционного разделов последний включает:

♠ схемы расположения элементов фундамента, перекрытий, стропильной системы крыши и лестниц;

♠ детальные чертежи отдельных узлов, а также спецификацию материалов, из которых они изготовлены;

♠ деталировочные планы монтажа — чертежи, которые позволяют поэлементно ознакомиться с конструкциями фундамента, перекрытий, стропильной системы крыши, пола и т. д.

Наиболее сложные узлы примыкания конструктивных элементов друг к другу должны быть приведены на отдельных чертежах с указанием основных размеров и привязкой по осям.

Инженерный раздел описывает коммуникации, проложенные внутри здания. В него включаются схемы систем жизнеобеспечения: водоснабжения, канализации, отопления, вентиляции и электрооборудования, а также общие расчеты и пояснения к ним. Кроме того, в данном разделе приводится спецификация оборудования и материалов.

Вход
Поиск по сайту
Ищем:
Календарь