Книга Бани и сауны, страница 113 – Татьяна Дорошенко

Авторы: А Б В Г Д Е Ж З И Й К Л М Н О П Р С Т У Ф Х Ч Ш Ы Э Ю Я
Книги: А Б В Г Д Е Ж З И Й К Л М Н О П Р С Т У Ф Х Ц Ч Ш Щ Ы Э Ю Я
Бесплатная онлайн библиотека LoveRead.in

Онлайн книга «Бани и сауны»

📃 Cтраница 113

Упражнение 5. Руки сложите на животе, локти отведите вперед как можно дальше. Плечи при этом старайтесь держать неподвижно. Повторить упражнение 10–12 раз.

Упражнение 6. Вдохните. Подымите руки, выдохните, руки расслабленно опускаются вниз. Немного ими потрясите, не двигая плечами. Повторить 8—10 раз.

Упражнения для кистей рук.

Перед упражнениями мышцы расслабляют, для этого нужно потрясти кисти, словно отряхивая их от воды.

Упражнение 1. Вращаем кисти в правую и левую сторону. Повторить 5–6 раз в каждую сторону.

Упражнение 2. Исходное положение: локти поставить на стол в вертикальном положении. Сгибать и разгибать кисти рук. Повторить 5–6 раз.

Упражнение 3. Исходное положение: руки свободно лежат на столе. Делайте движения кистью внутрь и наружу. Повторить 5–6 раз.

Упражнение 4. Исходное положение: предплечья составляют с ладонями одну линию. Ладони крепко соедините друг с другом, затем постарайтесь отвести пальцы как можно дальше друг от друга. Повторить 5–6 раз.

Упражнение 5. Сожмите руку в кулак, затем быстро разожмите его, одновременно раздвигая пальцы. Повторить 5–6 раз.

Упражнение 6. Ладонь выпрямить, затем по очереди сгибайте пальцы, начиная от мизинца. Разгибать начинайте с большого пальца. Сгибание-разгибание повторить 5–6 раз.

Упражнение 7. Руку сжать в кулак, потом резко выпрямить пальцы. Повторить 5–6 раз.

Упражнение 8. Вращать большим пальцем сначала по часовой стрелке, затем против. Повторить 5–6 раз.

Упражнение 9. Пальцы обеих рук вытянуть как можно больше, затем сильно ударять пальцами одной руки по пальцам другой. Повторить 5–6 раз. Потом промассировать каждый палец.

Упражнение 10. Отгибайте ладони назад, затем вперед. Повторить 6–8 раз.

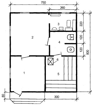
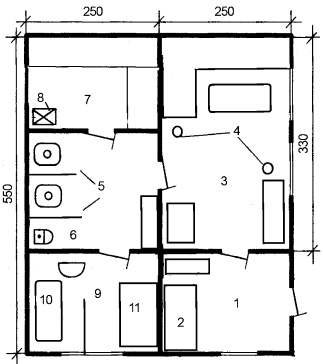
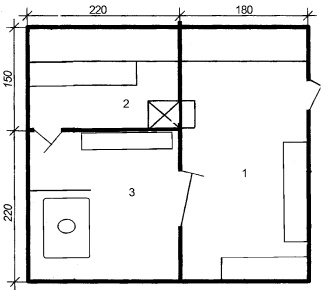
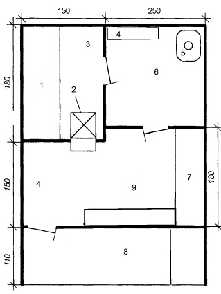
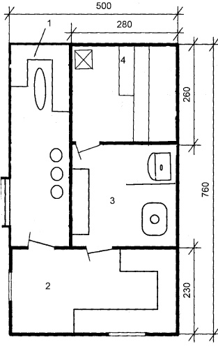
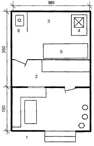
Варианты планировки

Схемы

Иллюстрация к книге — Бани и сауны [i_048.jpg]
Иллюстрация к книге — Бани и сауны [i_049.jpg]
Иллюстрация к книге — Бани и сауны [i_050.jpg]
Иллюстрация к книге — Бани и сауны [i_051.jpg]
Иллюстрация к книге — Бани и сауны [i_052.jpg]
Иллюстрация к книге — Бани и сауны [i_053.jpg]
Иллюстрация к книге — Бани и сауны [i_054.jpg]
Иллюстрация к книге — Бани и сауны [i_055.jpg]
Иллюстрация к книге — Бани и сауны [i_056.jpg]
Иллюстрация к книге — Бани и сауны [i_057.jpg]
Иллюстрация к книге — Бани и сауны [i_058.jpg]
Иллюстрация к книге — Бани и сауны [i_059.jpg]
Иллюстрация к книге — Бани и сауны [i_060.jpg]
Иллюстрация к книге — Бани и сауны [i_061.jpg]
Список литературы

1. Ауреден Л. Как стать красивой: Секреты красоты от Клеопатры до наших дней: Пер. с пол. – М.: Цитадель, 1996. – 224 с.

2. Бабушкин А. Баня: дом здоровья. – СПб: Питер, 1999. – 160 с.

3. Бани и сауны: Энциклопедия здоровья /Авт. – сост. Орлова М. О. – М.: ООО «Изд-во АСТ»; Донецк: Стакер, 2002. – 317 с.

4. Бани, сауны, бассейны: типы, проектирование и строительство. – М.: Эксмо, 2005. – 208 с.

5. Бирюков А. А. Эта волшебница баня. – М.: Советский спорт, 1991. – 11 с.

6. Водолечение / Сост.: А. А. Кузьменко и др. / – К.: Здоровье, 1992. – 240 с.

7. Все о банях: Сост.: М.О.Орлова, С.М.Тесла. – Донецк: ПКФ «БАО», 1997. – 400 с.

8. Галицкий А. В. Баня парит – здоровье дарит. – М.: Панорама, 1991. – 64 с.

9. Иванченко В.А. Тайны русского закала. Изд. 2-е /Предисл. Зверева И.Д. – М.: Мол. гвардия, 1986. – 173 с.

10. Ивашин Д. С. и др. Лекарственные растения Украины. – К.: Урожай, 1971. – 352 с.

11. Корзунова А.Н. Большая энциклопедия золотого уса. – М.: Эксмо, 2005. – 256 с.

12. Лiкарськi рослини: Енциклопед. довiдник. – К.: Вид-во «Украiнська Радянська Енциклопедiя» iм. М. П. Бажана; Украiнський виробнично-комерцiйний центр «Олiмп», 1992. – 544 с.

13. Михайленко Е.Т., Бублик-Дорняк Г. М. Гинекология: Пособие для мединститутов. К.: Вища школа, 1979. – 432 с.

14. Михайлов А. А. и др. Справочник фельдшера: В 2 томах. Под ред. А.А.Михайлова. – М.: Медицина, 1990.

15. Николайчук Л. В., Жигар М. П. Целебные растения. Лекарственные свойства. Кулинарные рецепты. Применение в косметике. – X.: Прапор, 1991. – 239 с.

16. Нуралиев Ю. Н. Лекарственные растения. Целебные свойства фруктов и овощей. – Душанбе: Маориф, 1988.

17. От болезни к здоровью: Науч. – популяр, изд. / Сост. Карат Л. П. и др. – Днепропетровск: Росток, 1995. – 394 с.

18. Порогов И. О пользе банных процедур. – М.: ЗАО Центрполиграф, 2004. – 187 с.

19. Самойлович В. В. Отделочные работы: Справочник домашнего мастера. – 2-е изд., стереотип. – К.: Будивельник, 1990. – 304 с.

20. Сделай сам. Новое в жизни, науке, технике: Подпис. научн. – популяр, сер., 1/1991, январь-март. – М.: «Знание», 1991. – 144 с.

21. Соколов С. Я., Замотав И. П. Справочник по лекарственным растениям (Фитотерапия). 3-е изд., стереотип. – М.: Медицина, 1990. – 464 с.

22. Трна С. Искусство вести здоровый образ жизни. Пер. с чешек. – М.: Медицина, 1984. – 232 с.

23. Шепеляв А.М. Справочник домашнего мастера. – М.: Стройиздат, 1989. – 367 с.

Вход
Поиск по сайту
Ищем:
Календарь