Книга Гомеровская Греция. Быт, религия, культура, страница 23 – Марджори Квеннелл, Чарльз Генрих Борн Квеннелл

Авторы: А Б В Г Д Е Ж З И Й К Л М Н О П Р С Т У Ф Х Ч Ш Ы Э Ю Я
Книги: А Б В Г Д Е Ж З И Й К Л М Н О П Р С Т У Ф Х Ц Ч Ш Щ Ы Э Ю Я
Бесплатная онлайн библиотека LoveRead.in

Онлайн книга «Гомеровская Греция. Быт, религия, культура»

📃 Cтраница 23

Рис. 51. Помещения с высокими сводами внутри городских стен Тиринфа


Подобно двум великим державам – Лиллипутии и Блефуску, которых Гулливер застал во время войны, шедшей уже в течение тридцати шести лунных месяцев по причине спора о том, нужно ли разбивать яйца с острой или тупой стороны, так и ученые, занимающиеся классическими древностями, разделились на два лагеря по вопросу о крышах Тиринфа. Одни говорят, что они были плоскими, а другие утверждают, что они были покатыми и имели фронтоны. Авторы, хотя и не являются специалистами в этой области, больше склоняются к последней точке зрения.

Гомер писал свои поэмы спустя много столетий после окончания Троянской войны, а стены Тиринфа были возведены задолго до ее начала. Вполне возможно, что дорийцы, которые вторглись в Грецию после завершения Троянской войны и еще до рождения Гомера, принесли с собой обычай возводить покатые крыши с фронтонами на концах. Мегарон Тиринфа, очевидно, стал прототипом древнегреческого храма с покатой крышей, украшенной различными архитектурными деталями. В «Илиаде» и «Одиссее» можно найти много упоминаний о крышах с фронтонами, которые имелись как у просто высоких домов, так и у дворцов с высокими крышами. Это может указывать на то, что Гомер имел в виду именно покатые крыши.

Иллюстрация к книге — Гомеровская Греция. Быт, религия, культура [i_053.jpg]

Рис. 52. Реконструкция большого дворца (мегарона) в Тиринфе


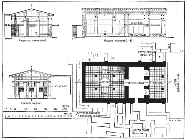
Против подобной точки зрения можно привести один аргумент. В десятой книге «Одиссеи» говорится о том, что Эльпинор отправился спать на крышу дворца Цирцеи и, внезапно разбуженный, упал вниз и сломал себе шею. Сторонники наличия плоских крыш полагают, что этот эпизод подтверждает их точку зрения, но так ли это на самом деле? Мы не рискнули бы утверждать это категорически, поскольку Эльпинор, увы, был пьян, а в таком состоянии он мог вполне отправиться спать и на покатую крышу. Итак, мы полагаем, что крыши дворцов были покатыми и покрывались сверху черепицей или соломой. Например, солома была использована для покрытия хижины, которую мир-мидоняне возвели для Ахилла. Крыши прочих сооружений Тиринфа были, скорее всего, плоскими, и трудно сказать, какие еще покрытия, помимо отмеченных выше, они могли иметь. На рис. 54 представлен предполагаемый вид мегарона с внешней стороны, а на рис. 55 – изнутри.

Здесь мы вновь вынуждены предупредить наших читателей относительно достоверности приводимых рисунков. Внутреннее убранство мегарона могло состоять из гораздо большего числа вещей, чем нами показано. Высокие колонны могли быть украшены прислоненными к ним копьями, а на стенах могло висеть другое оружие. Мы знаем, что Одиссей убрал оружие из зала перед тем, как начал истребление женихов. Вдоль стен размещались лежанки и сиденья, покрытые овчинами, и перед ними стояли трехлапые столики. Сундуки использовались для хранения одежды.

Гости спали на лежанках, стоявших в прихожей, располагавшейся под колоннадой. Когда Телемак прибыл в Спарту, он устроился на ночлег таким же образом («Одиссея», песнь четвертая). Отсюда гости легко могли добраться до купальни, в которой стояла ванна, подобная той, которая показана на рис. 58. Вода для ванны подогревалась в большом котле.

Покои Телемака описаны в первой книге «Одиссеи». Согласно этому описанию, они возвышались над просторным двором. Он ложился спать при свете факелов, вешал свою тунику на крючок и засыпал на сдвинутых лавках, завернувшись в овечью шкуру. Старая няня Эвриклея прислуживала ему, и, когда она уходила, он запирал ее изнутри. В двадцать первой песни говорится о том, что, когда Пенелопа отправилась искать лук Одиссея, она взяла ключ, ослабила узел и, вставив ключ, затем вытащила засов.

На рис. 59 показаны оригинальные дренажные трубы из обожженной глины, которые использовались в Тиринфе. Они выглядят не так современно, как округлые трубы с плотным соединением, найденные в Кноссе сэром Артуром Эвансом.

Перейдем теперь к описанию продуктов питания и процесса еды. Мы уже знаем, что жертвоприношение было важнейшей частью этой церемонии, практически то же самое, что и выражение благодарности в наши дни. Алтарь находился во дворе, обязательно напротив портика. Здесь животных, с соблюдением определенных церемоний, убивали и совершали подношения богам. Затем куски мяса приносили в дом и, нанизав на вертел, жарили их на очаге в центре зала, подкидывая в него дрова из кедра и сандалового дерева. Здесь же запекались желудки животных, наполненные кровью и жиром. Древние греки их именно жарили, а не отваривали. Женщины мололи ячмень и пшеницу в ручных мельницах, чтобы приготовить мужчинам еду, прием которой был их любимым развлечением. Когда Телемак отправился на корабле в Пилос, он взял с собой оливковое масло, вино и ячменную муку. В четвертой книге можно найти подробное описание того, какую еду он получил по прибытии в Спарту.

В двадцатой песни «Одиссеи» имеется интересное описание того, как служанки прибирали дом Одиссея, чистили столы скребками, подметали пол, а также мыли посуду.

Гомер достаточно много уделяет внимания тем обязанностям по дому, которые выполняли женщины. Так, например, Навзикая отправилась на речку стирать белье, где она его как следует прополоскала. В двадцать второй книге «Илиады» рассказывается, что троянские женщины стирали белье в каменных корытах, находившихся вблизи реки. Наверняка у них не было мыла и, скорее всего, они использовали что-то наподобие жирной глины для лучшего отстирывания белья.

Иллюстрация к книге — Гомеровская Греция. Быт, религия, культура [i_054.jpg]

Рис. 53. Взгляд с высоты птичьего полета на Тиринф с юго-запада


Кроме того, для женщины обязательным умением было шить одежду. Для начала шкуры очищали, затем красили. Шерсть вычесывалась и взбивалась, потом ее тщательно прочесывали гребнем, при этом волокна взбитой шерсти растягивались на максимально возможную длину6. На рис. 33 представлен не просто интересный, но еще и красивый фрагмент керамики, на котором показан процесс прядения. Сама прялка изготовлялась так, чтобы ее можно было закрепить выше колена. Оригинал этого рисунка хранится во втором зале античных ваз Британского музея. Небольшой фрагмент росписи вазы показывает нам процесс сучения нити, сбоку от пряхи можно также разглядеть небольшую изящную корзинку. Затем начинался собственно процесс прядения, которым занимались пряхи. На рис. 34, взятом с чернофигурной вазы, видно, как это делалось. Веретено изготовлялось из отполированного дерева, имело около тридцати сантиметров в длину и чуть больше сантиметра в диаметре, а также небольшое колесико, которое, по-видимому, облегчало процесс прядения. Прялку было принято держать в левой руке, а в ладони зажимали немного расчесанной шерсти. Она пропускалась через прялку и протягивалась руками до тех пор, пока не становилась достаточно длинной для того, чтобы ее можно было намотать в углубление, имевшееся в верхней части веретена. Затем через нее пропускалась шерсть, которая превращалась в нить. Затем нить наматывали на веретено, и процесс прядения продолжался. В четвертой книге «Одиссеи» можно найти упоминание о том, что у Елены было золотое веретено с шерстью фиолетово-голубого цвета, а также серебряная корзинка на колесиках, куда помещалась готовая пряжа. В шестой книге мать Навзикаи, сидя со своими служанками возле очага, пряла шерсть с пятнами цвета морской волны.

Вход
Поиск по сайту
Ищем:
Календарь