Книга Лучшие модели на любую фигуру без примерок и подгонок, страница 131 – Галия Злачевская

Авторы: А Б В Г Д Е Ж З И Й К Л М Н О П Р С Т У Ф Х Ч Ш Ы Э Ю Я
Книги: А Б В Г Д Е Ж З И Й К Л М Н О П Р С Т У Ф Х Ц Ч Ш Щ Ы Э Ю Я
Бесплатная онлайн библиотека LoveRead.in

Онлайн книга «Лучшие модели на любую фигуру без примерок и подгонок»

📃 Cтраница 131

В нашем случае ширина манжеты 5 см, значит, длина рукава будет равна:

65,5 – 2,5 = 63 см.


Классическая сорочка предполагает наличие втачного рукава. Поэтому пройма делится в золотом сечении. В остальном построение рукава в изделии совпадает с построением рукава на основе.

Классическая мужская сорочка выполняется с воротником на отрезной стойке. Построение такого воротника описано в теме «Воротники».

Сорочка на сутулую мужскую фигуру
Фигура 5

Чем хуже у тебя идут дела, тем лучше ты должен одеваться.

Английская пословица

Построим сорочку на сутулую мужскую фигуру. Если мы возьмем очень большие прибавки, то сможем скрыть особенности фигуры полностью, но изделие при этом превратится в объемный «мешок». Поэтому мы выберем минимальные из прибавок, возможных в данном случае. То есть мы выберем такие прибавки, которые могут компенсировать недостатки фигуры, не добавляя излишней объемности.

Мерки:

ДПЛ = 40,5; ОР = 27;

ДСТ = 43; ВПК = 43,5;

ДС = 45; ВГ = 15,5;

ШС = 18,5 + 2 = 20,5; ЦГ = 10 + 0,5 = 10,5;

ШПР = 9,5 + 2 = 11,5; ШПЛ = 10,5;

ШГР = 19,5 + 1 = 20,5; ДЛ = 35,5;

ШК = 17; ДР = 62.


Поскольку изделие прямого силуэта, мы можем пропустить «игреки», «иксы», ОТ и ОБ.

Чертеж «Мужская сорочка на сутулую фигуру»

Иллюстрация к книге — Лучшие модели на любую фигуру без примерок и подгонок [i_349.jpg]

Мужская сорочка на сутулую фигуру


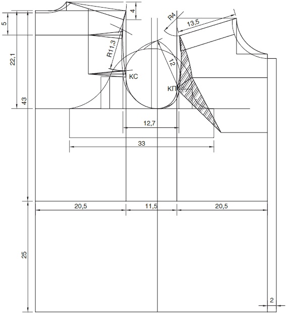
При выборе прибавок исходим из ширины полочки. Мы помним, что грудная клетка имеет не очень привлекательную деформацию. Для того чтобы скрыть это, сделаем прибавку к ширине груди 1 см.

Чтобы скрыть выпуклость спины, ширину спины уравняем с шириной груди, то есть возьмем прибавку 2 см. И наконец, к пройме выберем прибавку 2 см, так как полнота руки малая. Чтобы в дальнейшем можно было построить комфортный рукав, ширину проймы надо увеличить.

К длинам в данном варианте можно прибавки не делать, так как линия талии на изделии не фиксирована.

Прибавка к ширине плеча по чертежу составила 3 см:

13,5 – 10,5 = 3 см.


С выбранными прибавками выстраиваем основную схему выкройки. Вытачка, которую мы получаем на полочке, показывает нам прилегание к фигуре. Но в классической мужской сорочке отсутствует нагрудная вытачка. Поэтому мы избавимся от нее. От конца плеча полочки проведем лекальную линию к точке КП. В районе точки КП образуется небольшой выступ на стыке двух лекальных линий. Надо плавной линией удалить этот выступ. Точку КП мы подвинули влево на 0,5 см, это меньше, чем прибавка к ширине груди. Таким образом мы получили новое положение точки КП, назовем ее модельной КП, или МКП.

Заштрихованный участок на полочке показывает, насколько увеличилась свобода облегания в изделии относительно основы.

Вычертим вытачку на спинке. Местоположение вершины вытачки рассчитывайте исходя из ширины плеча с прибавкой.

13.5 х 0,38 = 5,2 см


Соединяя конец плеча спинки с точкой КС, мы также получаем небольшой выступ, который надо сгладить аналогично полочке. Смещение точки КС в этом случае еще менее существенно для посадки изделия, так как прибавка по спинке была сделана 2 см. У нас есть новое положение точки КС, или МКС.

Основа лифа для сорочки построена. Теперь посмотрим, какие возможности она дает для конструирования рукава.

Построение рукава

Восстановим линии допуска для пересечения дуг. Расстояние от МКС до конца плеча спинки составляет 11,6 см. Расстояние от точки МКП до конца плеча полочки 12 см. То есть мы получили вполне соизмеримые значения.

Из точки МКП проведем дугу радиусом 12 см. Дуга пересекает коридор. Возьмем верхнюю из возможных точек и соединим с точкой МКС. Измеренное расстояние составляет 11,3 см.

11.6 – 11,3 = 0,3 см


На эту величину необходимо увеличить раствор вытачки на спинке. Согласитесь, что это несущественная величина.

Теперь мы видим на чертеже, что все подготовительные операции для построения рукава сделаны.

Следующей важной задачей является определение прибавки к обхвату руки для построения рукава. Исходя из того, что к ширинам прибавки были небольшие, и к обхвату рукава прибавка должна быть небольшой.

Мы выберем 6 см.

ОР + 6 = 27 + 6 = 33 см


От точек МКП и МКС опустим вертикали вниз до пересечения с линией проймы для уточнения ширины проймы. Ширина проймы составила 12,7 см.

Рассчитаем прибавки на объемность рукава: формула расчета остается та же самая, но значение ШПР подставляем уточненное.

ОР – 2ШПР = 33-12,7 х 2 = 7,6 см


Напомню вам правило:

Если величина прибавки на объемность составляет менее 8 см, то ее для расчета надо брать 8 см.

Тогда со стороны полочки расширяем рукав на 3 см, со стороны спинки последовательно на 3 и 2 см. Далее рукав строится по обычной схеме.

Дополнительные особенности модели

Для построения воротника углубим горловину. По линии плеча и линии середины полочки на 1 см, по линии середины спинки на 0,5 см.

Сделаем прибавку на застежку. Обычно эта величина составляет 1,5-2,5 см, по модели. В данном изделии возьмем эту величину равной 2 см.

Вытачку на спинке, суммарный раствор которой составил

1,4 + 0,3 = 1,7 см,


целесообразно поднять выше и перевести в кокетку. Для того чтобы скрыть выпуклость спины, кокетка должна проходить выше наиболее выпуклой точки спины. Можно сделать кокетку и на полочке.

Вот, пожалуй, и все особенности построения сорочки на сутулую фигуру. Во всем остальном построение совпадает с построением мужской сорочки на фигуру с нормальным телосложением.

Полученную основу можно использовать для конструирования трикотажных изделий или изделий спортивного назначения. Но если нам потребуется классический мужской пиджак, то надо построить другую основу.

Классический мужской пиджак на сутулую фигуру
Фигура 5

Построение выполним на ту же фигуру, это значит мерки сохраняются. Но прибавки, которые мы должны выбрать для этого вида изделия, изменятся.

Мерки и прибавки:

ДПЛ = 40,5 + 1 = 41,5;

ДСТ = 43 + 1 = 44; ВГ = 15,5; ОТ = 74;

Вход
Поиск по сайту
Ищем:
Календарь