Книга Древние загадки фараонов, страница 15 – Ахмед Фахри

Авторы: А Б В Г Д Е Ж З И Й К Л М Н О П Р С Т У Ф Х Ч Ш Ы Э Ю Я
Книги: А Б В Г Д Е Ж З И Й К Л М Н О П Р С Т У Ф Х Ц Ч Ш Щ Ы Э Ю Я
Бесплатная онлайн библиотека LoveRead.in

Онлайн книга «Древние загадки фараонов»

📃 Cтраница 15
Иллюстрация к книге — Древние загадки фараонов [i_026.jpg]

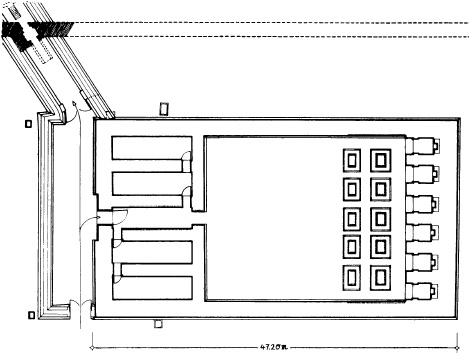
Рис. 22. Общий план комплекса Ломаной пирамиды в Дахшуре

Как правило, мы начинали работать в семь утра, а в девять делали получасовой перерыв на завтрак. 16 октября 1952 г., в первый день работы, я разделил рабочих на две бригады. Ровно через час двадцать одна из бригад наткнулась на верх высокой стены из известняковой кладки. Несколько минут спустя появились часть статуи и несколько фрагментов рельефа.

В девять утра я сел возле только что обнаруженной стены, рассматривая эти фрагменты, и с трудом верил своим глазам. Что же это были за надписи и как эта огромная стена пережила вандализм древних строителей? Неужели части нижнего храма удалось избежать разрушения? Египтологи дач roe время считали, что стены храмов не украшались рельефами вплоть до конца Четвертой династии. Если это правда, то откуда же взялись эти рельефы?

Последующие дни принесли новые находки, и мы поняли, что рельефы и стена действительно принадлежат нижнему храму. В тот сезон он был полностью раскопан. Было обнаружено около 1400 фрагментов рельефов. Стены здания все еще стояли достаточно высоко, так что мы могли восстановить план храма. Мы обнаружили статуи, стелы и многие другие предметы, однако все это меркло перед великолепными рельефами Снофру, которые показывали, как фараон исполняет древние церемонии. Дальнейшая работа вокруг небольшой пирамиды к югу от Ломаной пирамиды привела к открытию большой стелы с именами Снофру. Следующее краткое описание суммирует находки и то, что мы узнали о самой пирамиде и о храмах этого великого фараона.

ЮЖНАЯ, ИЛИ ЛОМАНАЯ, ПИРАМИДА

Дорога к комплексу Южной пирамиды царя Снофру в Дахшуре проходит через нижний храм, расположенный близ края обработанной земли (рис. 22). На время написания этой книги – это древнейший храм из найденных. Как мы уже говорили, при Ступенчатой пирамиде Джосера такого храма не было, нет и остатков дороги, которая заставила бы предполагать, что такое здание вообще было. Нижние храмы и ведущие к ним дороги не были найдены ни в одной из пирамид Третьей династии. Пирамида Медума, в которой были и дорога, и нижний храм (который еще предстоит раскопать), принадлежит, как теперь предполагают, фараону Ху и, судя по всему, была закончена (если не полностью построена) Снофру. Мы не можем сказать, были ли нижние храмы введены Снофру, или это была традиционная черта комплекса пирамиды.

Иллюстрация к книге — Древние загадки фараонов [i_027.jpg]

Рис. 23. План нижнего храма при пирамиде Снофру в Дахшуре (по Рике)

Нижний храм Снофру – это простое прямоугольное сооружение, размеры которого составляют 47,16 × 26,20 метра (90 × 50 древнеегипетских локтей), по длине ориентированное по оси север – юг (рис. 23). Храм был окружен толстой стеной теменоса из глинобитных кирпичей, в которой на восточной стороне, обращенной к полям, почти посредине были проделаны большие ворота. Насыпь, огражденная с каждой стороны кирпичными стенами, вела ко входу. Позднее эта дорога была заблокирована, и около юго-восточного угла ограды был сделан вход поменьше. Насыпь первоначального входа, возможно, вела к набережной, но этот участок еще не раскопан. На внешней стороне южной ограды стояли две огромные стелы из известняка с именем и изображением царя. Врата самого храма находились в центре южной стены и открывались в большой длинный зал со скульптурными фризами на западной и восточной стенах. Фриз на западной стене рисует царские поместья в Верхнем Египте: они изображены в виде женщин и обозначаются именами областей, номов [22] , в которых были расположены. На восточной стене подобный фриз, сильно разрушенный, изображал поместья царя в Нижнем Египте. Большая часть стен над фризами исчезла, однако осталось достаточно, чтобы увидеть скульптурные рельефы и сцены, изображавшие царя перед лицом богов.

По обеим сторонам Зала Номов находились две кладовые. В восточной на полу была небольшая крипта: золотая бусина и фрагменты золотой фольги говорят о том, что она служила местом хранения драгоценностей. Дверь на северном конце зала открывалась в открытый прямоугольный двор с простыми стенами. На северной стороне этого двора располагались шесть молелен, защищенных портиком, который поддерживали десять прямоугольных колонн в два ряда.

Стены под портиком были украшены рельефами и продолжением фриза, изображающего царские поместья. На колоннах, по меньшей мере с двух сторон, были расположены скульптуры. К несчастью, храм использовался как каменоломня, и ни одна из колонн не была найдена на своем месте. Все были разбиты на куски в открытом дворе, который служил чем-то вроде мастерской. Однако мы нашли много частей колонн и смогли сложить некоторые фрагменты. На них изображен фараон Снофру за исполнением различных церемоний, таких как праздник Хеб-сед, церемониальный визит в храмы Буто и основание храма. На других фрагментах видно, как фараон стоит перед богами или они обнимают его.

Ни одна из скульптурных стен шести молелен не сохранилась в неприкосновенности, но мы наш. in достаточно, чтобы восстановить их внешний вид. Внутренняя часть каждой молельни представляла собой монолитный наос из высококачественного известняка; большая статуя фараона в каждой была фактически вырублена из тою же самого куска камня. Эти статуи, фрагменты трех из которых нам удалось найти, были в натуральную величину или больше и, видимо, отличались но позам и костюму. Одна хорошо сохранившаяся статуя изображает царя в короне Верхнею Египта и юбке с поясом из тонкою гофрированного льна. На пряжке начертано ею имя. Руки опушены по бокам, на запястья надеты широкие браслеты, украшенные орнаментом из розеток и эмблемой бога Мина. На фасадах молельни расположены фигуры в горельефе, сделанные с потрясающим реализмом. Над дверью в каждый наос были вырезаны имена царя, обрамленные эмблемами и увенчанные лентой из пятиконечных звезд, символизирующих Небо. На каждой стороне стояла большая фигура Снофру. (Одна из них изображает его точно в таком же костюме, как на вышеописанной фигуре в наосе, вплоть до орнамента браслетов.)

Как мы уже говорили, культ Снофру процветал спустя столетия после его кончины, и здесь, в его нижнем храме, мы обнаружили множество свидетельств глубочайшего уважения, которым было окружено его имя. Под портиком перед статуями мы обнаружили статуи частных лиц, а также стелы и алтари. Они датируются как Древним, так и Средним царством. Храм был, видимо, разрушен в эпоху Восемнадцатой династии, поскольку в открытом дворе была найдена посуда этого периода, а позднее были построены жилища из глинобитных кирпичей как внутри, так и снаружи храма.

Во всех позднейших нижних храмах дорога ведет вверх от западной двери самого храма. Здесь она начинается вне здания на юго-западном конце каменной ограды. Ее стены из известняка были полностью сняты, кроме небольших фрагментов в самом начале. Стены были сделаны с наружным скосом и изогнутым карнизом. Дорога не была крытой. Любопытно, что она была замощена глинобитными кирпичами, положенными на известняковые плиты. Примерно через 700 метров дорога загибается и соединяется со стеной теменоса пирамиды и ведет во двор пирамиды.

Вход
Поиск по сайту
Ищем:
Календарь