Онлайн книга «Сельджуки. Кочевники – завоеватели Малой Азии»
|
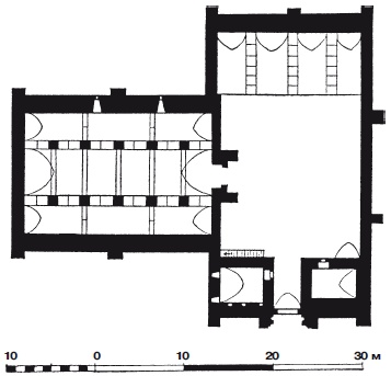
По такому плану, лишь с небольшими вариациями, строили сиротские приюты, богадельни, больницы, дома призрения для умалишенных. Очень редко, например в Дивриги, такие учреждения ставили непосредственно рядом с мечетью так, чтобы они образовывали единый комплекс (рис. 16). Такое несколько неожиданное сочетание, возможно, является отражением последнего, второго этапа существования обычая, возникшего в свете выполнения указа халифа Ум ара после того, как из дворца правителя была украдена государственная казна. Для предотвращения подобного в будущем халиф повелел перестроить дворец таким образом, чтобы он стоял вплотную к мечети, поскольку «в мечети днем и ночью есть народ, а он и есть лучшая охрана своего достояния». Следствием выполнения указа стало то, что в течение последующих двух веков в Иране появился обычай строить дворец правителя вплотную к южной стене мечети, квадратной в плане. Возможно, именно существованием такой практики и объясняется возведение в Дивриги через несколько веков мечети и больницы под одной крышей. КАРАВАН-САРАИ В Анатолии можно часто увидеть остатки величественных архитектурных сооружений эпохи Сельджукидов – руины огромных караван-сараев, по которым по-прежнему можно определить, где в старину проходили оживленные торговые пути. Основная масса этих зданий была построена в период расширения торговых связей, при Кейхусрове I, Кейкавусе I и Кейкубаде I, то есть между 1204-м и 1246 годами. Таким образом, в основном они принадлежат к классическому периоду. Некоторые из самых больших караван-сараев возводились по приказу султанов и поэтому являются воплощением имперского стиля. Попасть внутрь караван-сарая всегда можно было только через единственные ворота; некоторые специалисты предполагают, что эта особенность по своей сути является отражением традиции кочевников иметь в юрте один вход, однако более вероятно, что это было одной из мер, предпринятых с целью обороны от набегов грабителей. Другими средствами защиты от нападения были очень мощные внешние стены, усиленные башнями по углам, а иногда и с фасада здания. В отдельных случаях башни располагались также на равном расстоянии одна от другой вдоль всех четырех стен. Сами стены часто делали из необработанного камня и затем облицовывали большими плитами из тесаного камня; случалось, что всю стену целиком возводили из тесаного камня. Временами для стен использовали камни из разобранных сооружений, но значительно чаще их привозили из каменоломен. Форма башен варьировалась: обычно она бывала квадратной или прямоугольной, иногда круглой или восьмигранной. Узкие окна делали высоко – вероятно, это было дополнительной мерой против воров. Вход в караван-сарай богато украшали замечательной по замыслу и отлично выполненной резьбой по камню, ее утонченность и элегантность как будто бы обещали усталому путнику всевозможные городские удобства. Переступив порог таких величественных зданий, как султан-ханы (1229 и 1230), первое, что видел путешественник, – это маленькая мечеть в центре квадратного или прямоугольного двора, основание которой стоит не на земле, а на четырех высоких арках подковообразной формы (рис. 8, 15). Создавалось впечатление, что мечеть парит в воздухе – настолько легкой и изящной была единственная лестница, ведущая к ней с земли с двух сторон и повторяющая изгиб арки, обращенной ко входу в султан-хан. Подобная кружеву резьба по камню делала мечеть похожей на драгоценный камень в оправе. В более простых ханах, правда построенных ничуть не хуже, мечеть часто ставили справа от входа или сразу же над ним – тогда в нее можно было попасть по внутренней лестнице (рис. 18). ![]() Рис. 18. План хана Кесик Кёпрю недалеко от Кыршехира, 1268 г. По сторонам от сводчатого крыльца, с которого путешественник смотрел на двор, часто располагались комнаты, предназначенные для персонала хана, а под ними – напоминающие крытые галереи портики или открытые коридоры, которые с одной стороны вели в отдельные комнаты гостей и общие спальни, а с другой – в бани, кофейню, на кухню, в мастерские и на склады. Спальни, как правило, были оборудованы стационарными очагами, встроенными шкафами и местами для сна; они занимали оба этажа или только второй – в том случае, если на первом устраивали дополнительные склады или конюшни. В дальнем конце двора, напротив входа, а иногда под углом к нему было второе крыльцо, оно вело в великолепный зал с рядами колонн и контрфорсов, поддерживавших боковые приделы с цилиндрическими сводами. Из всех приделов всегда обращал на себя особое внимание центральный – дело в том, что обычно именно в нем находился центральный купол круглой или конусообразной формы. В куполе имелись небольшие окошки, однако, поскольку они располагались на огромной высоте, освещение в зале было плохим. Именно в этих величественных, но темноватых интерьерах, которые выдержат сравнение с любой столовой Оксфорда или Кембриджа, в стойлах у каменных кормушек держали вьючных животных, а в холодные зимние месяцы там же, возможно, спали и погонщики. В хане Теркан кухня ничем не уступала современным ей кухням Запада; ее очаг ничуть не меньше очагов в кухнях Фонтевролта и Гастонбери. Еще одним достоинством этого хана было наличие специальных стойл для верблюдов: подковообразные арки по пути в эти стойла были сделаны на большей высоте, чем арки перед стойлами лошадей и мулов (рис. 7). ![]() Рис. 19. План хана Сары на дороге Ургюп – Аванос, 1238 г. ОБОРОНИТЕЛЬНЫЕ СООРУЖЕНИЯ Большинство попадавших в руки Сельджукидов городов Анатолии уже имело довольно хорошие оборонительные сооружения, поэтому победителям, как правило, нужно было их лишь подремонтировать или укрепить. Иногда для того, чтобы ликвидировать какое-то слабое место, они строили башню или контрфорс. Однако отличить эти добавленные сльджуками детали от более ранней работы не так легко, особенно в тех случаях, когда работы выполняли те же местные мастера – судя по всему, христиане, – которые изначально строили эти оборонительные сооружения для византийцев. А вот появившиеся при сельджуках исламские надписи и монументальные входы, которыми они снабдили многие уже существовавшие крепости, безусловно, были делом рук мусульман, а не греков. Оборонительные стены Коньи и Сиваса были исключением из правил: они были построены или полностью перестроены по приказу Кейкубада I. Сейчас от них не осталось и следа, поэтому наши знания о фортификационных сооружениях Сельджукидов в значительной степени основываются на той информации, которой мы располагаем, судя по сохранившимся остаткам военно-морского арсенала и наземных оборонительных сооружений в Алайе и, в меньшей степени, по дошедшим до наших дней небольшим участкам стен, с моря защищавших Синоп. ![]() Рис. 20а. Кызыл Куле, то есть Красная башня, Алайе, 1224 г. |
![Иллюстрация к книге — Сельджуки. Кочевники – завоеватели Малой Азии [i_018.jpg] Иллюстрация к книге — Сельджуки. Кочевники – завоеватели Малой Азии [i_018.jpg]](img/book_covers/053/53983/i_018.jpg)
![Иллюстрация к книге — Сельджуки. Кочевники – завоеватели Малой Азии [i_019.jpg] Иллюстрация к книге — Сельджуки. Кочевники – завоеватели Малой Азии [i_019.jpg]](img/book_covers/053/53983/i_019.jpg)
![Иллюстрация к книге — Сельджуки. Кочевники – завоеватели Малой Азии [i_020.jpg] Иллюстрация к книге — Сельджуки. Кочевники – завоеватели Малой Азии [i_020.jpg]](img/book_covers/053/53983/i_020.jpg)