Книга Ацтеки, майя, инки. Великие царства древней Америки, страница 165 – Виктор В. фон Хаген

Авторы: А Б В Г Д Е Ж З И Й К Л М Н О П Р С Т У Ф Х Ч Ш Ы Э Ю Я
Книги: А Б В Г Д Е Ж З И Й К Л М Н О П Р С Т У Ф Х Ц Ч Ш Щ Ы Э Ю Я
Бесплатная онлайн библиотека LoveRead.in

Онлайн книга «Ацтеки, майя, инки. Великие царства древней Америки»

📃 Cтраница 165
Иллюстрация к книге — Ацтеки, майя, инки. Великие царства древней Америки [i_243.jpg]

Рис. 157. Переправа на камышовых лодках через реку, вытекающую из озера Титикака. Перерисовано у Эфраима Джорджа Скуайера, Перу, 1877


Последний вид мостов, который также произвел впечатление на первых испанцев своей оригинальностью, был понтонный камышовый мост. Самым примечательным (выдающимся, известным) из них был мост через единственную реку, вытекающую из озера Титикака (р. Десагуадеро, впадающая в бессточное озеро Поопо. – Ред.). Такие мосты строились так, как и все понтонные мосты, но здесь понтонами служили лодки из камыша. Эти суденышки (см. главу «Транспорт») помещались рядом друг с другом и сцеплялись друг с другом толстым канатом, который, в свою очередь, был прикреплен к каменным башням на противоположном берегу. Поверх понтонов клали настил из камыша. По мере того, как такой камышовый мост пропитывался водой, понтоны заменяли каждые два года. Обязанностью жителей деревни Чакамарка («Деревня у моста») было заменять понтоны, что являлось частью их миты (трудовой повинности). Этот мост просуществовал более восьмисот лет; им пользовались до 1875 года.

Постоялые дворы тампу

Две необходимые вещи составляют дорогу: одна – это поддержание ее в рабочем состоянии (без этого, как говорят африканцы, «дорога умирает»), другая – стол и ночлег. Во всех империях, в которых строились дороги, Персидской (Ахеменидов), Китайской или Римской, существовала система постоялых дворов для приюта путешественников. В империи Ахеменидов они располагались на расстоянии менее 30 км одна от другой. Геродот утверждает, что «…на дороге через определенные интервалы есть официальные почтовые станции с отличными постоялыми дворами… На отрезке дороги длиной 94,5 парсанга (1 парсанг, 5250 м, древнеиранская мера длины – столько человек проходил за час. – Ред.) [примерно 500 км (496,12)] расположены 20 станций… а общее количество таких путевых или почтовых станций на дороге из города Сарды (древняя столица Лидии в Малой Азии. – Примеч. пер) в Сузы (древний город, столица Элама, ныне Шуш в юго-западном Иране. – Примеч. пер.) сто одиннадцать…» (на 2400 км 111 станций – в среднем через 21,6 км. – Ред.).

По обеим сторонам китайских дорог, построенных династией Чжоу (ок. 1150 г. до н. э.), на определенном расстоянии друг от друга в пустыне, горах и на равнине стояли караван-сараи. Вдоль дорог Римской империи располагались постоялые дворы для ночлега. По такой дороге можно было путешествовать без привилегий или штрафов и даже купить путеводители, где предоставлялась информация о расстояниях между постоялыми дворами и о местонахождении почтовых станций.

Империя инков была такой же. У них была сеть почтовых станций, которые назывались тампус. «…Там стояли дома и склады, – писал Сьеса де Леон, который в 1547–1550 годах совершил путешествие по всей царской дороге инков, – каждые четыре – шесть лиг [20–30 км], где в изобилии имелись все продукты питания, которые только могли поставлять окрестные деревни… смотрители [куракас], которые проживали на главных станциях провинций, особенно заботились о том, чтобы местные жители хорошо снабжали эти тампус продовольствием».

Иллюстрация к книге — Ацтеки, майя, инки. Великие царства древней Америки [i_244.jpg]

Рис. 158. Вид и предназначение тампус, путевых станций на дорогах инков.

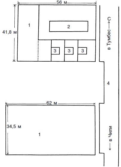
План первого этажа прибрежной тампу в Санье: 1 – предположительно стойла для лам; 2 – помещение для солдат или путешественников; 3 – отдельные комнаты; 4 – прибрежная дорога шириной двадцать четыре фута. Нарисовано Пабло Каррерой по записям автора книги


Тампус были служебными постройками (имели официальный статус). Так как никто не перемещался по дорогам без разрешения, следовательно, путешественники могли пользоваться путевыми станциями лишь в рамках своей служебной поездки. Расстояния между ними зависели от местности. В горах, если приходилось все время набирать или сбрасывать высоту, они стояли друг от друга на расстоянии около 20 км – путь, который можно было проделать за день в таких условиях. Если путь пролегал по ровной поверхности, то станции располагались на расстоянии около 30 км одна от другой, если дорога шла по пустыне, то интервал между тампус равнялся расстоянию между источниками воды (так как вода здесь решает все).

Иллюстрация к книге — Ацтеки, майя, инки. Великие царства древней Америки [i_245.jpg]

Рис. 159. Список постоялых дворов тамбос, или тампус, расположенных вдоль всей дороги инков, в изложении Фелипе Гуамана Пома де Айялы. Орфография испанская, но текст представляет собой смесь языка кечуа и испанского. Символы указывают на тип тампу в каждом остановочном пункте

Иллюстрация к книге — Ацтеки, майя, инки. Великие царства древней Америки [i_246.jpg]

Рис. 160. Обозначения трех различных типов тампу, согласно перечню Фелипе Гуамана Пома де Айялы (см. рис. 159): а – королевскую тампу изображает дом; б – тампу меньших размеров для обычных индейцев; в – дополнительные пункты отдыха изображает кружок


Эти станции были практичными и строились из грубого плитняка или адобы. Некоторые из них представляли собой одну большую постройку размером примерно 30 на 90 м, другие состояли из нескольких помещений меньшего размера, выходящих в кораль, где содержали лам. На побережье, особенно в Чале на юге Перу, расположенной посреди залитой солнцем пустыни, в такой постройке имелись несколько небольших комнат и выложенные камнем подземные хранилища.

Тампус содержались за счет местной общины, что было частью ее миты. Каждая община должна была следить, чтобы дорога на ее участке постоянно была в исправности (женщины пряли шерсть на ходу, так что дороги должны были быть хорошо замощены) и чтобы в тампу всегда был порядок и полные закрома. Сушеная кукуруза, картофель, высушенное на солнце мясо лам и обезвоженный картофель хранятся очень долго. Во время войны, когда по дороге одновременно могли передвигаться пятьдесят или более тысяч воинов, заранее посылалось извещение, и в распоряжение военных поступали обильные запасы продовольствия – это снабжение было гораздо лучше, чем то, с которым столкнулись революционные отряды Симона Боливара, когда в 1824 году тот проходил через Анды, чтобы нанести удар по вооруженным силам Испании. Тогда испанцы вынуждены были выслать вперед шесть тысяч живых бычков для девяти тысяч солдат; один бычок в день на каждую сотню человек.

Существовали разные типы таких тампу. Те, которые назывались «царскими» (чтобы отличать их от обычных), были предназначены для Правителя Инки или его губернаторов, когда те осуществляли свои инспекционные поездки по империи. В списке таких путевых станций, составленным полукровкой хронистом Фелипе Гуаманом Пома де Айялой, родившимся в Аякучо (1534?), можно увидеть, как он их пометил: царские тампус обозначены символом дома, менее значительные тампус – крестом, а дополнительные пункты отдыха, размещенные через интервалы на большом отрезке пути, он пометил кружком и назвал их уменьшительным словом тамбильос. Нам также многое известно о том, как они функционировали, по отчетам испанских чиновников, которые в 1543 году, лишь десять лет спустя после завоевания страны, осуществили инспекционную поездку по большой части древней дороги. В результате этой поездки на свет появился отчет, озаглавленный «Расположение (управление) путевых станций [тампус], расстояние между ними, система работы переносчиков грузов и обязанности соответствующих испанских инстанций в отношении вышеуказанных тамбос». Этот доклад был сделан в Куско 31 мая 1543 года. Он читается как какое-нибудь древнегреческое «Руководство по ремонту дорог». Это был первый доклад такого рода в обеих Америках.

Вход
Поиск по сайту
Ищем:
Календарь