Книга Баня, сауна. Строим своими руками, страница 2 – Иван Никитко

Авторы: А Б В Г Д Е Ж З И Й К Л М Н О П Р С Т У Ф Х Ч Ш Ы Э Ю Я
Книги: А Б В Г Д Е Ж З И Й К Л М Н О П Р С Т У Ф Х Ц Ч Ш Щ Ы Э Ю Я
Бесплатная онлайн библиотека LoveRead.in

Онлайн книга «Баня, сауна. Строим своими руками»

📃 Cтраница 2

Площадь парилки чаще всего составляет 7–9 м2. Ее лучше спроектировать квадратной. Чтобы не выходил пар, дверь в парильное отделение делают с высоким порогом и низкой коробкой. Печь-каменку обычно устанавливают в углу у двери. (Подробнее о печах для бани будет рассказано в одной из следующих глав.) Для такого типа бань оптимальным будет размер 2,5 × 4,5 м.

Предлагаю вашему вниманию несколько проектов бань, одни из которых рассчитаны на небольшую семью, а другие подойдут для проведения банных вечеринок в компании друзей.

Одноэтажная деревянная баня (рис. 1.1, 1.2). Общая площадь — 25 м2. Материал рубленых стен — архангельская сосна (место произрастания — северные районы Архангельской области). Диаметр вершины бревна — 20–22 см. Крыша имеет деревянную стропильную конструкцию.

Иллюстрация к книге — Баня, сауна. Строим своими руками [i_002.jpg]

Рис. 1.1. Одноэтажная баня из дерева

Иллюстрация к книге — Баня, сауна. Строим своими руками [i_003.jpg]

Рис. 1.2. План одноэтажной деревянной бани


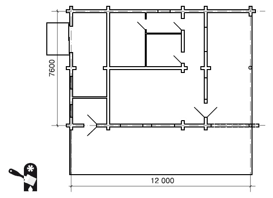
Деревянная баня — гостевой дом с мансардным этажом (рис. 1.3, 1.4). Общая площадь — 50 м2. Материал рубленых стен — архангельская сосна. Диаметр вершины бревна — 20–22 см. Крыша имеет деревянную стропильную конструкцию.

Иллюстрация к книге — Баня, сауна. Строим своими руками [i_004.jpg]

Рис. 1.3. Баня — гостевой дом

Иллюстрация к книге — Баня, сауна. Строим своими руками [i_005.jpg]

Рис. 1.4. План первого этажа


Одноэтажная деревянная баня с террасой (рис. 1.5, 1.6). Общая площадь — 25 м2.Материал рубленых стен — архангельская сосна. Диаметр вершины бревна — 20–22 см. Крыша имеет деревянную стропильную конструкцию.

Иллюстрация к книге — Баня, сауна. Строим своими руками [i_006.jpg]

Рис. 1.5. Деревянная баня с террасой

Иллюстрация к книге — Баня, сауна. Строим своими руками [i_007.jpg]

Рис. 1.6. План бани с террасой


Одноэтажная баня (рис. 1.7, 1.8), которую можно использовать как место для отдыха, так как возле нее спроектирована вместительная терраса. Сама баня относительно небольших размеров, поэтому отлично подойдет как экономичный вариант для семьи из трех-четырех человек.

Иллюстрация к книге — Баня, сауна. Строим своими руками [i_008.jpg]

Рис. 1.7. Баня с вместительной террасой

Иллюстрация к книге — Баня, сауна. Строим своими руками [i_009.jpg]

Рис. 1.8. План бани

Подбираем материалы

Итак, проект бани перед вами. Теперь предстоит составить смету, то есть подробный список всего, что вам придется приобрести.

Примерная смета строительства деревянной бани представлена в табл. 1.1–1.3. Цены приведены в российских рублях. Размер сооружения: 5,5 × 8,76 м по осям. Фундамент — ленточный железобетонный.


Таблица 1.1. Фундамент

Иллюстрация к книге — Баня, сауна. Строим своими руками [i_010.jpg]

Таблица 1.2. Сборка сруба

Иллюстрация к книге — Баня, сауна. Строим своими руками [i_011.jpg]
Иллюстрация к книге — Баня, сауна. Строим своими руками [i_012.jpg]

Таблица 1.3. Крыша

Иллюстрация к книге — Баня, сауна. Строим своими руками [i_013.jpg]

Итого:

✓ по материалу — 324 718,1 р.;

✓ работа — 252 715 р.;

✓ транспортные расходы — 25 000 р.

Общая стоимость: 602 433,1 р.


Несомненно, лучшая баня — срубленная из хорошо высушенных бревен и досок. Деревянные стены быстрее нагреваются и хорошо впитывают влагу. В такой бане легче поддерживать нужную температуру и влажность. На богатой лесами Руси бани всегда строили из дерева.

Но времена изменились, и сегодня для возведения бани используют не только дерево, но и камень, кирпич, пеноблок. Понадобятся цемент, глина, песок, шифер, древесно-стружечные и древесно-волокнистые плиты, минеральные и органические утеплители, стекла, асбестоцементные трубы, пароизолирующие пленки и листы, кровельное железо и некоторые другие материалы. Если вы ранее никогда не сталкивались со строительством довольно крупных сооружений, вам будет полезно заранее узнать о некоторых свойствах этих материалов.

Древесина

Самый нужный материал для строительства бани — это дерево, из которого можно построить, как и много веков назад, всю баню, от фундамента до крыши.

Опорные подушки, столбы для фундамента, первый венецстен и лаги для пола делают из дуба, высушенного на специальных подставках под навесом.

Бревна, доски и брусья из качественной смолистой сосны служат для укладки 3–4-го нижних венцов стен, пола и матицы потолка. Для этих конструкций, а также для постройки фундамента прекрасно подходит и лиственница.

Для верхних венцов, потолка и обшивки стен используются пиломатериалы из легкой белой ели и липы. Эти породы дерева хорошо поглощают влагу и звуки. Говорят, что такая древесина «дышит, как живой организм».

Полки и скамейки лучше всего делать из липовых досок и брусьев, создающих ощущение теплоты и мягкости.

На сегодняшний день несомненные лидеры в строительстве из дерева — профилированный брус и оцилиндрованное бревно (рис. 1.9, 1.10).

Иллюстрация к книге — Баня, сауна. Строим своими руками [i_014.jpg]

Рис. 1.9. Профилирование бруса (а) и оцилиндровка бревна (б)

Иллюстрация к книге — Баня, сауна. Строим своими руками [i_015.jpg]

Рис. 1.10. Оцилиндрованное бревно и профилированный брус разной толщины

Вход
Поиск по сайту
Ищем:
Календарь