Книга Трагедии Севастопольской крепости, страница 113 – Александр Широкорад

Авторы: А Б В Г Д Е Ж З И Й К Л М Н О П Р С Т У Ф Х Ч Ш Ы Э Ю Я
Книги: А Б В Г Д Е Ж З И Й К Л М Н О П Р С Т У Ф Х Ц Ч Ш Щ Ы Э Ю Я
Бесплатная онлайн библиотека LoveRead.in

Онлайн книга «Трагедии Севастопольской крепости»

📃 Cтраница 113

Несколько слов скажу о крылатой ракете «Малахит». Разработка крылатой ракеты «Малахит» велась ОКБ-52 по Постановлению Совмина № 250—89 от 28 февраля 1963 г. (по одному постановлению с «Базальтом»), Головным разработчиком ее было все то же ОКБ-52.

Ракета «Малахит», имевшая индексы секретный П-120 и несекретный 4К-85, предназначалась на замену «Аметиста», но, в отличие от «Аметиста», новая ракета могла запускаться как с подводных лодок, так и с надводных кораблей.

П-120 внешне повторяла обводы П-70, но существенно отличалась конструкцией стартовых агрегатов. Как мы уже знаем, стартовый агрегат П-70 состоял из двух спарок, а стартовик П-120 повторял конструкцию стартовиков семейства П-5, то есть имел двухтрубную конструкцию с двумя двигателями отброса. В такой комплектации П-120 запускалась и с надводных кораблей. А для пуска с подводных лодок на каждую из труб насаживалось еще по одной (малой) трубе. В этих трубах находились двигатели подводного хода.

Ракета П-120 имела тот же диаметр (0,65 м), что и П-70, но была на 600 мм длиннее (8,2 м и 8,8 м соответственно).

Фугас но-кумулятивная боевая часть ракеты «Малахит» была одинакова с «Аметистом» и весила 500 кг.

В 1963 г. в ОКБ-16 разработали проект переделки погружающегося стенда ПСД в стенд ПСП-120. То же ЦКБ-16 получило задание на переоборудование подводной лодки проекта 613АД в проект 613П-120 для подводного пуска ракет «Малахит». Однако проработки ЦКБ-16 показали, что из-за малого водоизмещения подводная лодка проекта 613П-120 в момент старта будет малоуправляемой. Поэтому разработчики предложили использовать для опытных пусков «Малахита» лодки проекта 611 с большим водоизмещением. ВМФ согласился с заключением Бюро по проектной проработке и дал согласие выделить для переоборудования подводную лодку проекта АВ611. Однако переоборудование выполнено не было. ГКС и ВМФ приняли решение проводить летно-конструкторские испытания с боевой подводной лодки проекта 670М.

Переоборудование стенда ПСА по проекту ПСП-120 на заводе № 444 продвигалось медленно из-за задержки основными разработчиками и изготовителями поставок частей комплекса: пусковой установки, аппаратуры корабельной системы управления ракетой, аппаратуры корабельных систем предстартовой подготовки и старта и контрольно-измерительной аппаратуры.

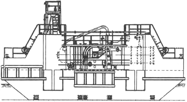
Иллюстрация к книге — Трагедии Севастопольской крепости [i_055.jpg]

Погружающийся стенд ПСП-120.

Только в августе 1968 г. закончились основные монтажные работы, и стенд перевели на техническую позицию в/ч 99375 в Балаклаву, где продолжалось его дооборудование. После швартовых испытаний и пробных погружений 28 декабря 1968 г. был подписан акт о готовности погружающегося стенда проекта ПСП-120.

С 17 июля по 20 октября 1969 г. в районе Балаклавы с погружающегося стенда ПСП-120 было запущено 3 ракеты «Малахит». Обеспечивало пуск все то же кабельное судно КС-4. Три пуска подтвердили устойчивое и стабильное прохождение ракетами всех участков траектории: контейнера стенда, подводной траектории, перехода с водной на воздушную траекторию и воздушной траектории.

Параллельно испытания ракеты П-120 шли на полигоне «Песчаная Балка» под Феодосией [80] .

Постановлением Совмина от 17 марта 1972 г. комплекс «Малахит» был принят на вооружение малых ракетных кораблей проекта 1234, а постановлением Совмина от 21 ноября 1977 г. комплекс «Малахит» был принят на вооружение подводных лодок проекта 670М.

К 1970 г. американцы прекратили полномасштабные работы по созданию неуправляемых реактивных торпед, хотя, возможно, какие-то исследования в этой области и велись. Вскоре вообще все неуправляемые торпеды были сняты с вооружения ВМФ США. Для дезинформации советского руководства американцы подкинули в прессу сведения об испытаниях в ВМФ США противолодочной реактивной торпеды, имевшей фантастическую скорость — от 200 до 300 узлов, то есть 100—150 м/с, что в полтора раза выше скорости «Шквала». В СССР эту дезу приняли всерьез и во всю прыть продолжали работать над неуправляемыми реактивными торпедами.

Работы над противолодочной торпедой (подводной ракетой) «Шквал» были начаты по Постановлению Совмина № 111—463 от 13 октября 1960 г. Проектирование торпеды было поручено НИИ-24 (в настоящее время — ГНПО «Регион»). Главным конструктором комплекса «Шквал» был назначен И.Л. Меркулов, затем его сменил В.Р. Серов, а завершил работу Е.Д. Раков.

Эскизный проект торпеды был утвержден в 1963 г. Согласно эскизному проекту дальность хода ракет 15—20 км, а скорость хода на маршевом участке 100 м/с (194 узла!).

Высокая скорость движения торпеды ВА-111 получена за счет применения подводного реактивного двигателя, работающего на твердом гидрореагирующем топливе, обеспечивающем большую тягу, а также за счет движения торпеды в газовой каверне, что снижает сопротивление при ее движении в воде.

Первые опытные пуски торпед «Шквал» начались в 1964 г. на полигоне на озере Иссык-Куль со специального плавучего стенда.

Для проведения конструкторских и государственных испытаний вновь задействовали подводную лодку С-65 проекта 613, на которой отрабатывался комплекс «Вьюга». Работы по ее дооборудованию велись на Черноморском судостроительном заводе и на электромонтажном предприятии «Эра» на Севастопольском морском заводе. В апреле 1966 г. лодка перебазировалась в Феодосию.

Из-за затянувшихся испытаний ракеты М-4 на озере Иссык-Куль и последующей доработки ракеты к испытаниям на подводной лодке С-65 приступили только в 1976 г. С нее провели 7 пусков ракеты М-5, после чего государственные испытания завершились.

В 1977 г. противолодочный комплекс «Шквал», не имеющий аналогов за рубежом, был принят на вооружение.

Поскольку глубина старта ракет новых комплексов значительно превысила допустимую глубину эксплуатации подводной лодки С-65, к тому же уже выработавшей свой ресурс, было принято решение на переоборудование подводных лодок С-II и С-49 по проекту 633РВ. И лодку С-49, прибывшую в августе 1969 г. с Северного флота, поставили в сентябре 1970 г. на переоборудование. Работы велись в Севастополе на сдаточной базе завода «Красное Сормово» и на Севастопольском морском заводе. На лодке установили такую же аппаратуру, как и на С-65. Ее 533-мм торпедные аппараты соответствовали серийным на атомных лодках проекта 671, а 650-мм торпедные аппараты соответствовали аппаратам на лодке проекта 671РТ.

Переоборудование подводной лодки С-49 завершилось в 1972 г., и лодка ушла в Феодосию, где 25 декабря 1972 г. на ней впервые в СССР был осуществлен пуск ракетоторпеды «Водопад» с глубины 50 м. В последующие два года были выполнены еще 24 успешных ракетных пуска с глубин 50—150 м. В 1975 г. на С-49 установили систему глубоководной стрельбы, позволяющую в том же году провести еще 22 пуска противолодочных ракетоторпед, в том числе впервые в мире с глубины 240 м. До июля 1985 г. лодка С-49 была задействована уже в серийных испытаниях всех имеющихся на вооружении ВМФ ракетоторпед.

Вход
Поиск по сайту
Ищем:
Календарь