Книга Знаменитый универсант Виктор Николаевич Сорока-Росинский. Страницы жизни, страница 12 – Рива Шендерова

Авторы: А Б В Г Д Е Ж З И Й К Л М Н О П Р С Т У Ф Х Ч Ш Ы Э Ю Я
Книги: А Б В Г Д Е Ж З И Й К Л М Н О П Р С Т У Ф Х Ц Ч Ш Щ Ы Э Ю Я
Бесплатная онлайн библиотека LoveRead.in

Онлайн книга «Знаменитый универсант Виктор Николаевич Сорока-Росинский. Страницы жизни»

📃 Cтраница 12

А в другие дни - я одна, иногда с кем-то из младших сестер.

Но всегда нас ожидал праздничный стол и хозяин, полностью готовый к приему гостей - аккуратно выбритый, подстриженный и причесанный, сорочка с галстуком, пиджак застегнут на все пуговицы. Иногда пили кофе или какао со сгущенным молоком, на стол в таком случае подавалось печенье или сухарики. Грязную посуду мы всегда мыли и тщательно вытирали, Виктор Николаевич тут же ее расставлял по местам.

За два-три дня до прихода я, по просьбе Виктора Николаевича, звонила ему. В трубке раздавался знакомый голос: «Слушаю». Я называла себя. В ответ: «А, Рива, очень рад. Приходи (называл день и час)». Я никогда не опаздывала. Виктор Николаевич опозданий не терпел, считал их признаком плохого воспитания и дурного тона.

Иллюстрация к книге — Знаменитый универсант Виктор Николаевич Сорока-Росинский. Страницы жизни [Famous-universitarians-Victor-Soroka-Rosinskiy-03.jpg]

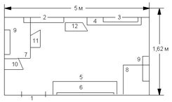
План комнаты Виктора Николаевича: 1 - дверь; 2 - окно с форточкой, шторой и подоконником; 3 - окно в глухую стену, плотно заставленное большим буфетом; 4 - большой высокий буфет; 5 - кровать, превращенная в тахту; 6 - ковер над кроватью; 7 - обеденный стол под клеенкой, служивший Виктору Николаевичу рабочим столом, здесь же он ел, когда был один; 8 - выдвижной столик-тумбочка, его использовали для приема гостей, перемещая между кроватью-тахтой и буфетом; 9 - две книжные полки; 10, 11, 12 - стулья.

Постараюсь описать эту дивную комнату, с которой связаны чудесные воспоминания. Она выходила двумя окнами во двор. Правое окно - в глухую стену, расположенную совсем рядом. Это окно навсегда было закрыто большим, вместительным, со многими ящиками и отделениями буфетом. По-моему, там хранилось все имущество Виктора Николаевича. Вдоль другой, параллельной стены стояла узкая кровать, покрытая ковром. Получалась тахта, на ней помещалось два-три человека. В левой короткой части комнаты - обеденный стол, покрытый клеенкой. Там Виктор Николаевич работал - писал, читал. Над столом - небольшая полка с книгами, толстыми тетрадями и фарфоровыми фигурками - персонажами «Мертвых душ» и «Ревизора». Виктор Николаевич сам купил этот набор, он был замечательно выполнен ленинградскими художниками. По правой короткой стенке маленькая тумбочка (она и служила гостевым столиком для «больших приемов»), ее можно было выдвинуть, точнее - вдвинуть или придвинуть к кровати. Над тумбочкой - еще одна полочка с толстыми тетрадями и маленьким бюстом А. В. Суворова. На рабочем столе - настольная лампа. Над кроватью - небольшой ковер, настенная лампа и иконка овальной формы в легкой деревянной рамке с изображением Михаила Архангела. Видя наше изумление (дети атеистического времени), Виктор Николаевич просто сказал, указывая на икону: «Это родительское благословение. Я с ним не расстаюсь». С потолка спускалась чрезвычайно симпатичная лампа - соединенные треугольником небольшие трубки дневного света, накрытые вместо абажура красивым крепдешиновым платком в крупную красно-сине-белую клетку. Возле рабочего стола - два стула, третий - между буфетом и подоконником «действующего окна. На окне - штора. На подоконнике и под ним - бутылки хороших марочных вин. Потом к ним присоединилось «Российское полусладкое», слегка газированное. Виктор Николаевич любил его, а еще более - купаж, который составлял из какого-либо грузинского и «Российского полусладкого». Иногда «Российское» добавлял к хересу или мадере.

За столом Виктор Николаевич был неизменно доброжелателен и вел себя не как наш наставник, учитель, воспитатель, а как исключительно радушный хозяин. И мы себя чувствовали свободно и уютно. Сорока-Росинский внимательно расспрашивал о каждой из нас, радовался нашим успехам, вникал в планы, поддерживал. Разговор не прерывался ни на миг. Учитель любил расспрашивать Арину о Новгороде (тогда его не называли Великим). В этом городе Виктор Николаевич учился и окончил гимназию, прекрасно знал героическую и трагическую историю новгородской земли. Любил достопримечательности этого города - Кремль, старинные фрески Феофана Грека, Юрьев монастырь, Ярославово Дворище, языческую Перынь, дивный Волхов.

Учитель искренне горевал, зная, как чудовищно прошлась по Новгороду война. Виктор Николаевич хорошо помнил, что у Арины есть близкие родственники в тех краях (все знал о нас!), она бывает там во время летних каникул, она - правдивый свидетель того, что осталось от города, как его восстанавливают. Слушая рассказы, мы в то же время учились пробовать и пить разные вина, есть закуски, пользоваться ножом. Заставил распробовать маслины и сделал их и рокфор моим лакомством навсегда. Много рассказывал о сырах - твердых, мягких, плавленых: откуда пошли, какие страны и в чем именно преуспели. Подавал фрукты - яблоки, мандарины.

Задушевные беседы Виктор Николаевич вел со мной одной. Из них я однажды узнала, что еще в 1953 году Виктор Николаевич оставил нашу школу и перешел совсем близко к дому, на Лермонтовский вблизи Садовой. А вскоре Виктор Николаевич рассказал мне, что вовсе оставил работу, вышел на пенсию. Сказал: «Понимаешь, Рива, я совсем плохо стал видеть. Даже у сидящих на первых партах вместо лиц вижу какие-то блины. Нельзя работать с классом, не видя лиц своих учеников». Но работать Виктор Николаевич не перестал. Он изобрел новинку - «орфографическое лото»; из школы, где преподавал в конце своей педагогической деятельности, по договоренности с учителем русского языка и завучем, ему присылали «партию из семи-восьми человек - абсолютных двоечников». С ними Виктор Николаевич играл в это лото в прихожей ежедневно по одному часу после их уроков до тех пор, пока они не переходили в разряд твердых троечников. Тогда Виктор Николаевич звонил в школу и просил «новую партию». «Мои идиотики» - так ласково называл «ведомых» Виктор Николаевич. Он был чрезвычайно увлечен своим лото, видел большую перспективу в его использовании, но никто не хотел вдуматься, перестроиться, внедрить новинку. Куда бы Виктор Николаевич ни обращался - не с просьбой, а с предложением взять его работу на апробацию, разумеется, без вознаграждения, - ни одна школа, ни один методический кабинет, ни одна кафедра русского языка не решились на эксперимент. Но Виктор Николаевич - внешне по крайней мере - не унывал, продолжал совершенствовать свое детище. Много писал, но никогда не рассказывал и не показывал мне своей работы. И лото я никогда не видала. «Тебе не нужно. Ты и так грамотная», - вот что я услышала в ответ на свою просьбу показать мне лото. Я не настаивала. Молода была и глупа. По словам А. С. Пушкина, «мы ленивы и нелюбопытны». Полностью отношу к себе в этом случае.

Говорили мы с Виктором Николаевичем о многом. О несчастной любви - он сказал: «Несчастной любви не бывает. Любить гораздо важнее, чем быть любимым». О возможности или невозможности любви с первого взгляда - Виктор Николаевич верил в такую возможность, рассказал, что однажды с площадки стоящего поезда он увидел на площадке встречного и тоже стоящего поезда женщину. Они обменялись такими взглядами, что он до сих пор - через сорок лет - помнит ее. Поезд тронулся, они не успели и не смогли вымолвить друг другу ни слова, только помахали друг другу рукой. Виктор Николаевич был уверен, что мимо прошла любовь.

Вход
Поиск по сайту
Ищем:
Календарь